
文章图片

文章图片

文章图片

文章图片

文章图片

文章图片

文章图片

文章图片

文章图片

▲ 建筑面积129平 , 造价45万(不含家电) , 项目坐标:南京 , 完工时间:2021年9月 , 本案业主第二次找壹石设计 , 见证一家人从小屋到大房 , 此次为改善采光和空间通透 , 把空间打开 , 以光为媒 , 让空气更加的流通 , 视觉也更为通透 , 更让人有放松愉悦的畅快
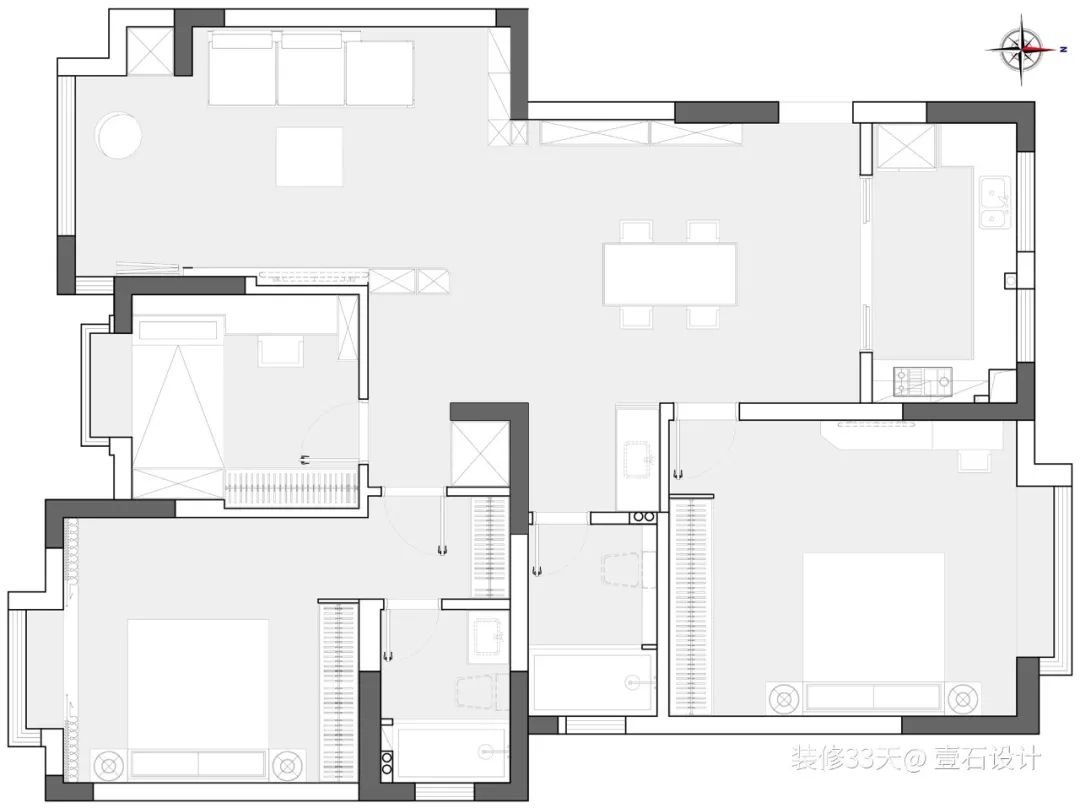
▲ 平面结构图
▲ 平面布置图
▲ 打通带有南阳台的卧室隔墙 , 让入户与餐厅一下子豁然开朗 , 进门后右侧打造悬浮式收纳柜 , 满足储物、衣帽柜、鞋柜、置物区等功能
▲ 餐厅 , 以餐桌为中心形成洄游线路 , 木色地板搭配极简顶面设计
▲ 空间秩序感体现在对细节处理 , 餐厅选择一组皮质餐椅 , 光洁细腻有品味 , 也容易打理 , 餐桌后方的长虹玻璃做干区隔断 , 不影响就餐环境
▲ 餐厅望向客厅 , 空间中的柜体基本以悬空的形式设计 , 白色与原木给人天然的纯净感
▲ 厨房 , 大U布局最大化的利用空间 , 深灰色与鱼肚白瓷砖诠释简约与耐看
▲ 客厅 , 电视背景墙采取木饰面装饰造型 , 将电视内嵌 , 让空间看起来更简洁 , 并利用电视墙造型延伸做出悬空隔断柜 , 解决主卧及主卫门的空间隐私性
▲ 纯白沙发背景墙 , 采用线型壁灯 , 流露层次感 , 越是简洁的空间 , 适宜的光线点缀 , 为颜值加分 , 还营造出一种光影特有的温馨感
▲ 沙发一角
▲ 客厅望向餐厨视角 , 沙发边上增加一组开放式展示柜 , 合理利用每一寸空间
▲ 过道
▲ 儿童房床铺采取榻榻米的形式 , 书桌与床头链接一体 , 并用灯带装饰 , 将储物空间、休息空间和学习空间发挥到极致
▲ 悬空的书桌与侧墙的书柜也形成串联 , 灰褐色与白色搭配 , 加持灯光 , 扩大空间居住体验
▲ 主卧床头背景墙利用石膏板抽缝工艺 , 简洁又有层次 , 隐形灯带增加氛围效果
▲ 悬空床头柜将墙裙和衣柜交错呼应 , 形成连贯的空间体
特别声明:本站内容均来自网友提供或互联网,仅供参考,请勿用于商业和其他非法用途。如果侵犯了您的权益请与我们联系,我们将在24小时内删除。
