
文章图片

文章图片

文章图片

文章图片

文章图片

文章图片

文章图片

文章图片

文章图片

文章图片
今天和大家分享的这个装修案例 , 业主可以说是一个很心大的人 , 从确定装修方案到整个装修完工 , 业主只出现了一次 。 最后验房的时候打开房门的一瞬间 , 还以为自己走错了家 。 也是因为业主这份绝对性的信任 , 让设计师有了更多的发挥空间 , 也尽自己最大努力为业主打造了一个完美的家 。
装修过程中只露面一次的业主 , 打开房门的一瞬间 , 还以为走错了家
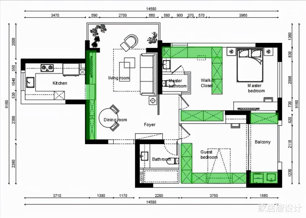
房屋户型:两室
房屋面积:90平方米
装修预算:30到50万
所在城市:上海
设计师:李文伟
主要建材:线板、木皮、喷漆、大理石、黑铁漆、铁件、玻璃、木地板、壁纸
这个房屋的户型结构还算是比较规整 , 业主夫妻对于家新家的唯一计划就是能够拥有一个衣帽间 , 在整个装修过程中 , 业主也没有多余的参与 。
为了不辜负业主的这份信任 , 设计师在整个装修过程中非常尽心 , 不仅满足了业主对于衣帽间的期望 , 也为业主打造了一个美观又实用的家居空间 。
【装修过程中只露面一次的业主,打开房门的一瞬间,还以为走错了家】
【衣帽间】
设计亮点:镜面门板
家里的衣帽间选择了步入式的设计 , 因为卫生间的干湿分离设计得非常好 , 所以不用担心卫生间的水汽会影响到旁边的衣帽间 。
在卫生间和衣帽间中间的区域 , 还为女主人空出了一个梳妆台的位置 , 充分满足女主人的需求 , 考虑到空间比较有限 , 所以设计了一个镜面门板作为全身镜使用 。
衣帽间的内部都是定制的衣柜 , 足可以满足一家人日常放置衣物的需求 。
【客厅】
设计亮点:内嵌式电视柜
考虑到家里的面积并不是很大 , 所以装修过程中也增加了一些储物空间 , 客厅的电视柜选择了内嵌式的设计 , 电视柜的顶部和底部都可以用来收纳物品 。
客厅沙发后面的非承重墙改造成了玻璃隔断 , 这样既保证了客厅空间的完整性 , 也增强了空间的通透性 , 同时也让整个室内空间变得更有设计感 。
特别声明:本站内容均来自网友提供或互联网,仅供参考,请勿用于商业和其他非法用途。如果侵犯了您的权益请与我们联系,我们将在24小时内删除。
