【地下车库入口风水 地下车库出口风水讲究】

文章插图
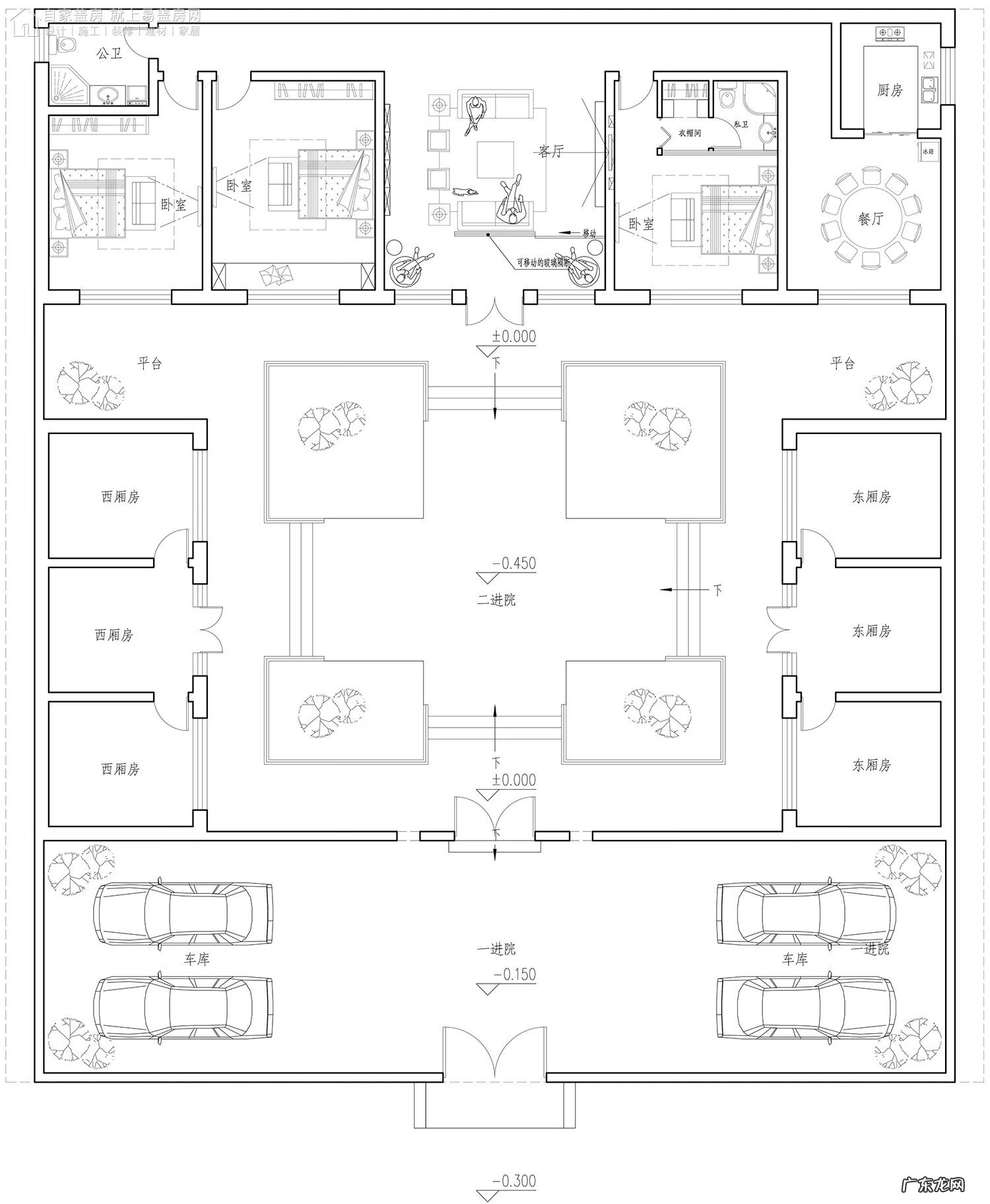
项目名称:河北廊坊王家三合院
图纸编号:1003
占地面积:283.8㎡
建筑面积:283.8㎡(不包含保温)
建筑尺寸:25.5m×21.7m
土建参考造价:51万元(不包含室内装修费用)
项目概况

文章插图
总平面示意图
项目简介:
形式设计为三合院 。对于功能方面,厢房保留功能布局,后期业主可根据实际需求进行调整 。正房布置三间卧室,配合客、餐、厨组成整体空间 。
平面布局
户型概况:1层 / 3室 2厅 2卫 1厨 1衣帽 6房间

文章插图
一层平面图
一进院作为停车空间,二进院为居住区域 。
东、西厢房各保留三间房间,可根据实际需求进行功能布置 。
正房将交通流线放在北侧,客厅位置布置一个小型玄关,让室内外有所缓冲,同时玻璃隔断的使用不会影响后方空间的采光 。
造型设计

文章插图
建筑整体为新中式风格,粉墙黛瓦的造型配合三合院布局将建筑的韵味表达出来 。

文章插图

文章插图
建筑大门与二进院的院门选择不同造型,体现出不同层级间的关系,使得建筑主次分明 。

文章插图

文章插图
车库选择玻璃顶,类似阳光房的空间相比封闭车库更加开阔 。

文章插图

文章插图
南侧效果图
院墙开有扇形墙窗,极具中式韵味的墙窗在外部展现出建筑的韵味和美感 。

文章插图
门后影壁解决了院门后方空间私密性的问题 。四个角落的绿化区域根据风水测算栽种不同种类的绿植,寓意极好 。

文章插图
庭院效果图

文章插图
东立面图

文章插图
西立面图

文章插图
南立面图

文章插图
北立面图
- 造梦西游3紫金轻甲是谁的装备 紫金轻甲属性
- 地下城与勇士M QQ地下城与勇士
- 全国英语四六级报名入口 英语六级报名条件
- 黑铁酒吧钥匙怎么获得 黑铁酒吧钥匙在哪
- 地下城巨龙副本攻略 巨龙地下城攻略大全
- 淘宝有新咖入口在哪?淘宝有新咖如何加入?
- dnf节日礼包有哪些 DNF送礼物
- 楼下是车库的二楼好吗 一楼车库二楼风水怎么样
- 会计从业资格证报名入口官网 会计资格考试网上报名入口
- 风水宝地下葬异象 风水断地下异物
特别声明:本站内容均来自网友提供或互联网,仅供参考,请勿用于商业和其他非法用途。如果侵犯了您的权益请与我们联系,我们将在24小时内删除。
