买了上海40㎡的老洋房,翻新成复式房后,连原主人看了都后悔卖了
----买了上海40㎡的老洋房 , 翻新成复式房后 , 连原主人看了都后悔卖了//----
----买了上海40㎡的老洋房 , 翻新成复式房后 , 连原主人看了都后悔卖了//----
----买了上海40㎡的老洋房 , 翻新成复式房后 , 连原主人看了都后悔卖了//----
----买了上海40㎡的老洋房 , 翻新成复式房后 , 连原主人看了都后悔卖了//----
----买了上海40㎡的老洋房 , 翻新成复式房后 , 连原主人看了都后悔卖了//----
----买了上海40㎡的老洋房 , 翻新成复式房后 , 连原主人看了都后悔卖了//----
----买了上海40㎡的老洋房 , 翻新成复式房后 , 连原主人看了都后悔卖了//----
"multi_version":false
今天在这里与大家分享的复式装修案例 , 是一套位于上海的老洋房 , 面积只有40平米左右 。 买下了后就把他翻新成复式房 , 没想到出现令人意想不到的结果 , 连原主人来参观都认不出来了!这是一套复式的房子 , 单层的面积40平米左右 , 装修花了16万 。 下面带大家一起欣赏老洋房焕然一新的变化 。
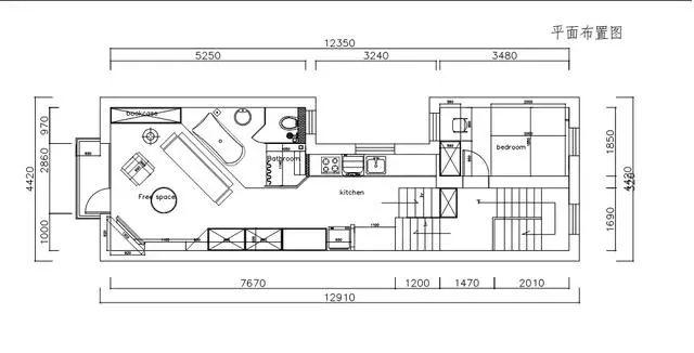
先是原始的户型图 , 然后是侧面剖析图 , 我们可以看出房子的一楼是入户台阶;二楼是卫生间;三楼是客厅、厨房和卧室 。
业主是一位单身的男士 , 设计师根据业主的具体需求进行改造 。 改造的要点:采光是首先的前提;原来的卫生间改成卧室;卫浴设计在客厅中间 。
房子改造前:
最后确定的风格是时下很流行的工业风的混搭风格 。
之前的老房子采光差 , 所以在设计上面这是一个改造的重点 , 这里设计灯源的结合 。
卧室
在二楼的走廊设计了鞋柜 , 卫浴改成现在的卧室 , 以后不用担心下水和返味 。
卧室墙面保持水泥墙 , 设计的是地台 , 这样的设计引来了很多的争议 , 不过还是要符合业主的喜好 。
特别声明:本站内容均来自网友提供或互联网,仅供参考,请勿用于商业和其他非法用途。如果侵犯了您的权益请与我们联系,我们将在24小时内删除。
