项目名称:浅山香邑
项目类别:平层
面 积:80m2
装修风格:日式混搭风格
装修造价:25万(主材+施工)
设计说明(家庭成员及要求):两口之家 。客户:是一位30岁出头很有品味的男士,由于之前在日本留过学,受到那里的生活方式和文化方面的影响,所以很喜欢日式风格,对于生活要求极高,平时下班以后喜欢宅在家里,所以希望在通过设计师的设计满足他独特的审美需求及生活的舒适度 。客户母亲:是一位50多岁很有气质的大学教师,她的要求就是希望温馨舒适 。

文章插图
客厅:简洁舒适的日式造型,柔和的灯光氛围,再陈设些现代的物件,置身其中,仿佛穿梭在两个国家和不同时代背景之中 。

文章插图
主卧:简洁舒适的软装搭配,暖媚的灯光设计,让人宁静的享受着卧室的温馨舒适 。

文章插图
榻榻米房:榻榻米与日本的教宗教仪式和茶道都有密切联系,结合客户之前在日本有很长是生活历程,同时也很喜好茶道,再加上客户家里储物空间较少,利用其中一间卧室来营造一个多功能的空间使用 。

文章插图
次卧:整体的空间设计简洁敞亮,家具采用了局部深色点缀,迎合了客户喜欢 。

文章插图
厨房:色彩丰富的仿古砖,加上浅色调的木纹橱柜,形成鲜明的对比,却毫不浮躁 。

文章插图
卫生间:极具现代感的卫生间简洁设计,加上日式壁灯的少量日式元素点缀,最大限度的提高了空间利用率 。

文章插图
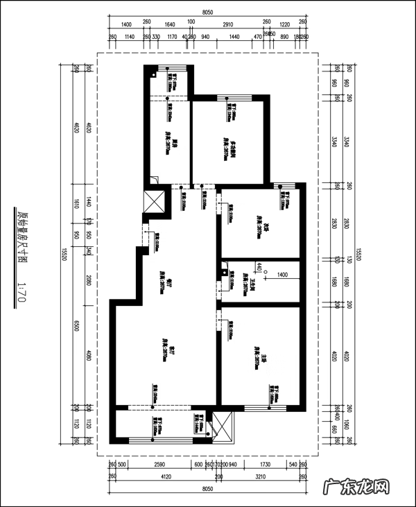
原使户型图

文章插图
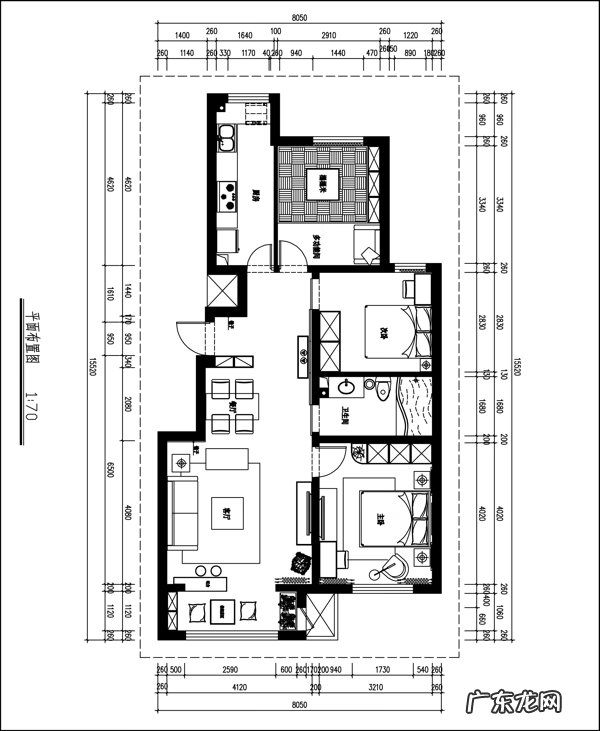
【顺义浅山香邑租房 浅山香邑户型图】平面布置图
特别声明:本站内容均来自网友提供或互联网,仅供参考,请勿用于商业和其他非法用途。如果侵犯了您的权益请与我们联系,我们将在24小时内删除。
