135㎡新房交给60后母亲装修,前后花了30W,全屋木地板很满意!

文章图片

文章图片

文章图片

文章图片

文章图片

文章图片

文章图片

文章图片

文章图片

文章图片

文章图片
屋主她家就是如此 , 建筑面积135㎡新房交给了60后母亲装修 , 其实也就是相当于监工而已 , 这半年来的装修其实也是比较辛苦的 。 装修偏现代简约风格 , 前后装修花了30W , 基本没有做其他复杂的造型 。 值得一提的是 , 全屋地面选择铺贴木地板 , 整体的效果显得很满意 , 看着也很有档次 。 下面 , 带大家一起来感受感受 , 希望能给大家带来好的装修灵感!
装修比较繁杂 , 遇到琐碎的事情也比较多 。 对于在外工作来说 , 真的没有办法亲力亲为负责装修 , 只能麻烦家里人或者父母 。 不过 , 在装修的过程中 , 只要保持经常沟通 , 交给父母帮忙装修 , 也是不错的一种选择 。
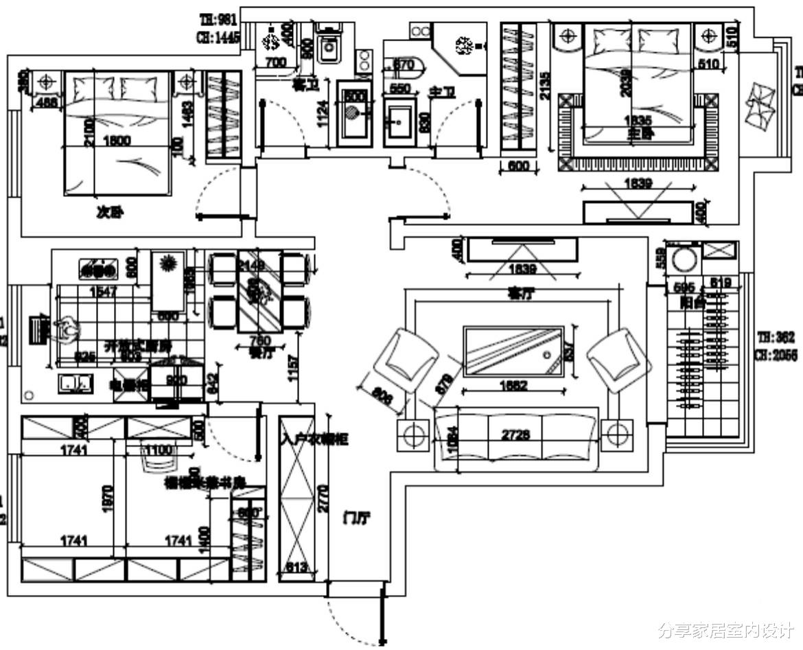
户型图
属于比较常见的一种户型了 , 其中把一个房间作为书房 , 其他的话 , 基本没有做任何的变动 。 客厅与阳台是打通的 , 可以扩大了室内面积 。 相信很多人都能看懂 , 这样的户型哈!
入户玄关
打开入户大门 , 左侧做了一排的鞋柜 , 可以增加大量的储物空间 。 考虑到实用性 , 没有分为上下两层 , 而是类似衣柜的效果 , 显得比较简洁 , 大气 。 柜门做了一些线条的造型 , 比较有视觉线条感 。 右边布置了长方形的换鞋凳 , 可以非常方便坐着换穿鞋子 。 正对面过道墙上挂着很漂亮的油画 , 可以起到很好的视觉效果 , 让人看到都很喜欢 。
餐厅
餐厅空间有限 , 布置了一张方形餐桌 , 胡桃色的实木餐桌 , 质感其实还是蛮不错的 。 不管是横竖摆放 , 包括可以根据人多而方便挪动位置 , 没有任何影响 。 墙上铺贴了类似石膏线条一样的效果 , 不过贴的是PU线条 , 可以挂装饰画 , 效果会更完美 。 很喜欢分子吊灯 , 颜值很高 , 也比较简单 。 旁边就是厨房了 , 做了开放式的厨房 , 显得空间宽敞很多 , 白天的时候 , 室内光线也比较好 。
特别声明:本站内容均来自网友提供或互联网,仅供参考,请勿用于商业和其他非法用途。如果侵犯了您的权益请与我们联系,我们将在24小时内删除。
