占地12X14的现代风别墅,二层这样的大露台设计不多见

文章图片

文章图片

文章图片

文章图片

文章图片

文章图片

文章图片

现代风格别墅在农村算是比较少的样式了 , 今天介绍两款现代 , 两层三层都有 , 造价普遍在四五十万左右 , 来看看怎么样?
图纸编号:RY-04
别墅层数: 二层
别墅风格: 现代
占地面积:173㎡
建筑面积:363.96㎡
预估造价:40.0万
建筑结构:砖混结构
建筑占地:12m×14m
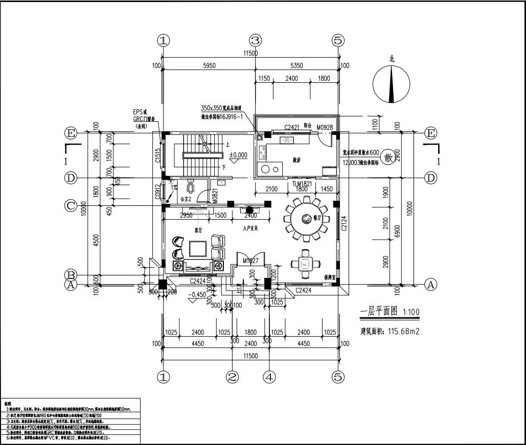
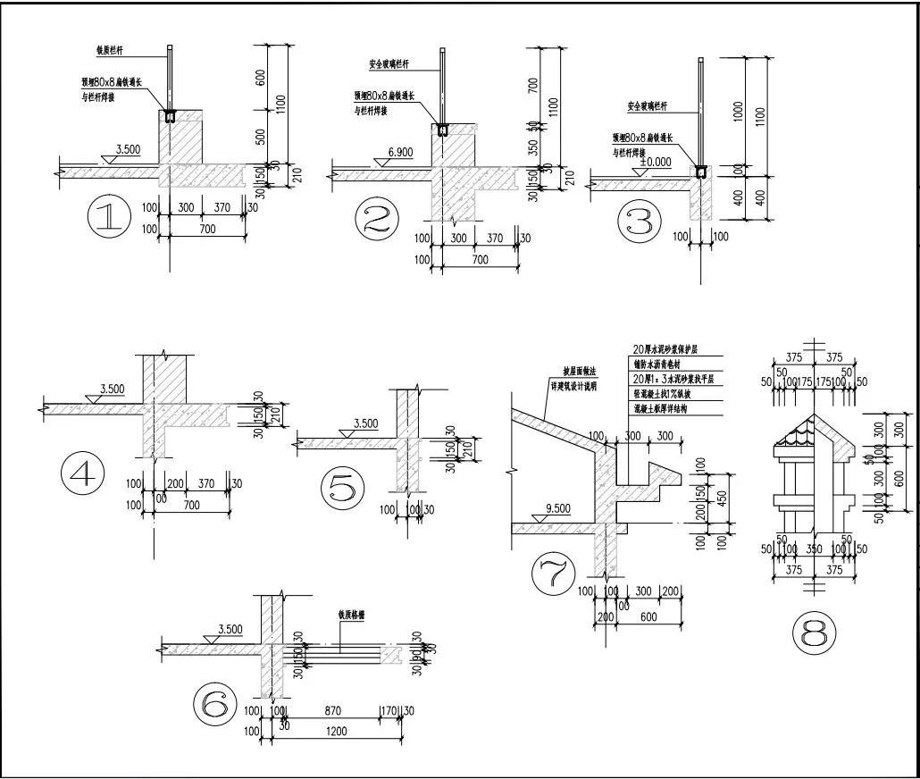
平 面 图
图纸编号:RY-05
别墅层数: 三层
别墅风格: 现代
占地面积:115㎡
建筑面积:452.46㎡
预估造价:50.0万
建筑结构:框架结构
建筑占地:11.5m×10m
平 面 图
【占地12X14的现代风别墅,二层这样的大露台设计不多见】
特别声明:本站内容均来自网友提供或互联网,仅供参考,请勿用于商业和其他非法用途。如果侵犯了您的权益请与我们联系,我们将在24小时内删除。
