【泰州室内设计去哪个学校 泰州室内设计培训学校】

文章插图
结识董先生全家那年他女儿刚刚考上大学,准备举家搬至南京,遂同年9月在南京诞生了青山湾---{韵}这个作品……记得当时SKH的小伙伴们在沈老师的带领下,已经开启了全程托管整包模式 。很荣幸那年的我能够参与其中,也见证了SKH的成长……

文章插图

文章插图
因为工作调动,迁往泰州的董先生找到了沈老师,邀其为新家做设计 。董先生说,他常常这样想,自从认识了沈老师,居住质量和品位提高了不少档次,比起一般意义上的装修,区别很大,也许要多出一些设计费,但是他们愿意这样做,只要在他们力所能及的范围之内,并且他们对沈老师一直常怀感激……他们对项目没有什么要求,二度合作充分信任沈老师,只要求给他们一个稳定温暖的家 。

文章插图

文章插图

文章插图

文章插图

文章插图

文章插图
做此项目前沈老师对我们说,对于每一次的艺术创作,“灵感从哪里来”对于他来讲不是很重要,因为灵感有的时候就是很荒谬的一个来源,或者甚至都不知道是怎么来的 。可是他相信,创作必须要在一种自由心的状态下,最好是完完全全地自由,才会出现好的创作 。设计是一种力的较量,与业主之间,与施工难度之间都是一个拔河的过程,事实上创作的过程就是不断地跟那些紧箍咒的对抗 。
感谢业主全力配合,没有过多的干预,给予SKH小伙伴们充分发挥的自由并顺利完成了泰州【咏叹调】这个作品 。

文章插图

文章插图

文章插图

文章插图

文章插图

文章插图

文章插图

文章插图

文章插图
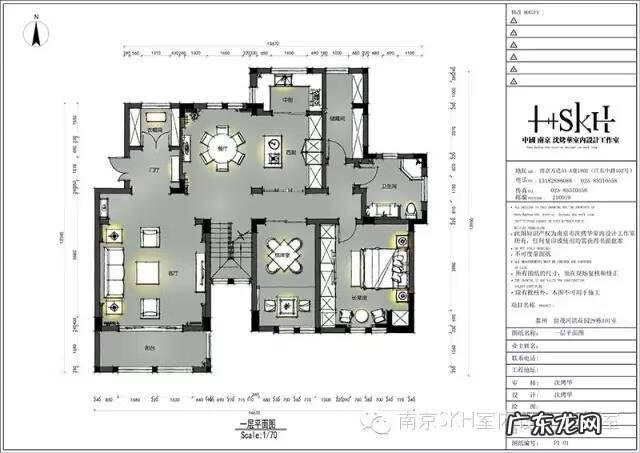
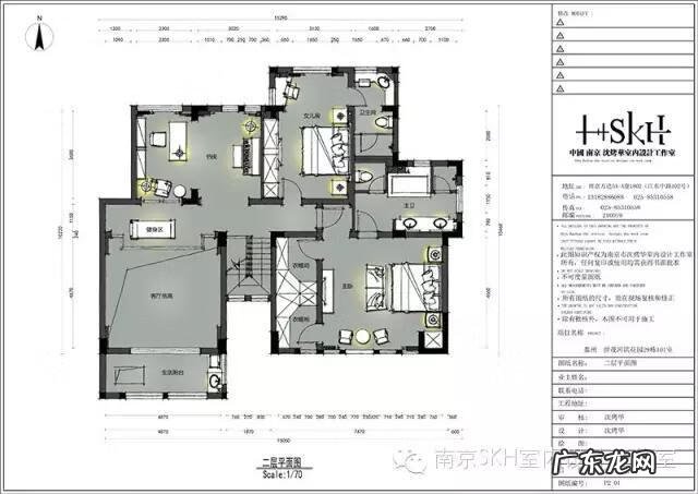
咏叹调即抒情调,它是在十七世纪末,随着歌剧的迅速发展,人们不再满足于宣叙调的平淡,希望有更富于感情色彩的表现形式而产生的 。同时它往往是最精彩的唱段,结构完整,需要演员掌握高度的演唱技巧 。还可以拿出来单独作为音乐会的独唱节目来演唱 。这些犹如沈老师此套作品,高低起伏,不趋于平淡,极富感情色彩,他完美的把这一切融合到了一起,并且重点设定的一些区域又可以单独拿出来作为高潮的一个篇章,不拘泥于各种形式,遂取名为【咏叹调】 。
- 你会突破固化阶层去改变自己的生活吗
- 去黑头的方法简单实用 快速去黑头方法
- 青核桃怎样去皮快 青皮核桃怎么去皮快
- 和孩子交流很困难怎么办
- 淘宝图片轮播如何去掉店名
- 孩子变结巴了要找语言康复师去治疗吗
- 去甲醛摆放什么植物好养的 去甲醛摆放什么植物
- 五座小车超载一个小孩怎么去处罚
- 睡前故事长篇完整版 睡前故事长篇
- 天猫授权专卖店 天猫品牌授权去哪儿找
特别声明:本站内容均来自网友提供或互联网,仅供参考,请勿用于商业和其他非法用途。如果侵犯了您的权益请与我们联系,我们将在24小时内删除。
