
文章图片

文章图片

文章图片

文章图片

文章图片

文章图片

文章图片

文章图片

文章图片

文章图片

文章图片

文章图片

文章图片

文章图片
业主夫妇居住的房子是爷爷送给他们的结婚礼物 , 转眼这栋房子也已经过了35岁的生日 , 为了让这份爱能够更好地传承下去 , 夫妇两人希望能够对房子进行重新的改造 。 夫妇两人在国外留学多年 , 对艺术和美的追求有着非常明确的定义 , 希望自己的家可以简约但是不能简单 。
爷爷送的结婚礼物 , 在设计师的魔法改造下 , 变身为明媚的二人世界
房屋户型:两室
房屋面积:87平方米
装修预算:30万
设计师:李文伟
主要建材:线板、木皮、喷漆、大理石、黑铁漆、铁件、玻璃、木地板、壁纸
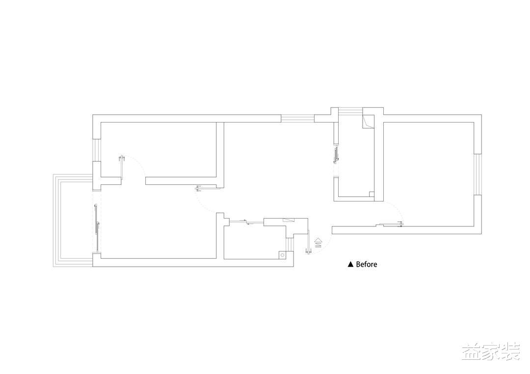
【户型图】
原始户型:
1:餐厅 , 厨房等主要生活区的动线十分的不合理 , 空间划分也相对比较分散 , 造成了空间的大部分的浪费 。
2:房屋户型比较狭长 , 导致空间的采光和通风都十分的不好 。
3:厨房的面积非常小 , 操作区也非常的不足 , 导致烹饪无法正常地进行 。
改造重点:
1:厨房拆除了不必要的隔断 , 打造成一体式布局 , 确保空间的开阔和明亮 。
2:客厅改成了卧室 , 让空间动线更加的合理灵动 。
特别声明:本站内容均来自网友提供或互联网,仅供参考,请勿用于商业和其他非法用途。如果侵犯了您的权益请与我们联系,我们将在24小时内删除。
