95后小夫妻的新房,温馨浪漫的“网红风设计”,与众不同个性鲜明

文章图片

文章图片

文章图片

文章图片

文章图片

文章图片

文章图片

这一次改造的房屋是一个局部改造的空间 , 是简约风的风格 。 极具创意的设计格局 , 电梯入户的房屋 , 面积以110平方米的三室二厅一卫的格局整体地展现出来 。 面积虽然很大 , 很空旷 , 一般人的脑海中一定是富丽堂皇 , 有着奢华的风格 , 其实不是 , 以简约的风格结合现代的住宅设计为创意空间 , 没有以为的奢华之感 。
95后小夫妻的新房 , 温馨浪漫的“网红风设计” , 与众不同个性鲜明
案例:现代混搭
居住成员:大人、小孩
房屋面积:110平方米
房屋类型:大空间布局
空间格局:3室2厅1卫
设计师:李大脓
房屋的基本装修 , 是相当于人的素颜 , 所以我们要去装饰并且想要去设计 , 很有效果地表达出来 , 这就需要有想法的创意所在 。 整体空间感非常的有艺术的格调 , 满足了居住环境和使用者的要求 , 设计得极其有感觉的质感 。
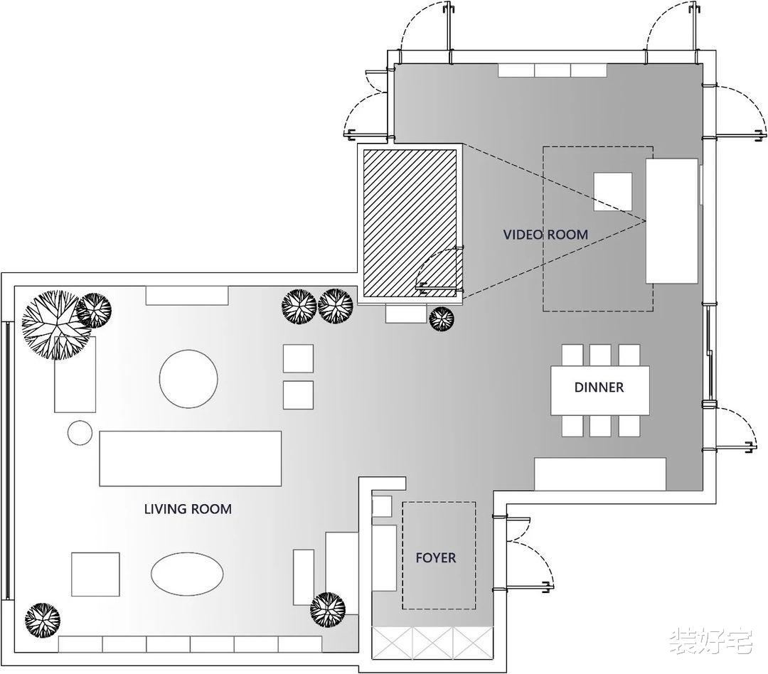
【户型图】
1.因为原始房屋的空间整体面积大 , 空旷 , 所以进行局部改造设计 。
2.在门厅增加了玄关柜 , 以此调和空间区域 。
3.提升了多功能的性能 , 在餐厅的空间更换了大餐桌的形式 , 有效地改造了面积空间 , 同时还增加了影音的区域 。
4.将书桌调整到客厅的左侧墙面 , 使得客厅分为两个区域而设计 。 分为会客区和休闲区 , 同样提高了聚会的满足 。
【玄关】
设计重点:增加仪式感
在玄关处把照片放到了玄关柜上 , 有创意的装饰风格 , 同时还有家人的美好回忆 , 丰富了设计感 , 墙面贴了软木板 , 对于这样的改造设计环保和健康 , 风格上进行了统一 , 增加了仪式感 。
【客厅】
设计重点:沙发的风格
采用了大地色系 , 在客厅的会客区域内 , 弧形的抱枕样式 , 具有创意的宣纸灯 , 运用元素设计 , 有着视觉上的影响力 。 搭配圆弧形的沙发 , 简约风格凸显 , 还让对于行走更为宽敞 , 有着温暖和柔和的感觉 。
设计重点:茶几的统一风格
茶几是白云的形状 , 茶几充满了圆润感 , 与沙发产生了融合 , 风格更为统一和谐 。 花瓶放置在茶几上与整体空间产生了共鸣 , 丰富了质感 , 有着画面的意境和享受 。
特别声明:本站内容均来自网友提供或互联网,仅供参考,请勿用于商业和其他非法用途。如果侵犯了您的权益请与我们联系,我们将在24小时内删除。
