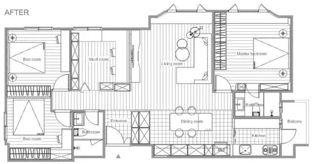
老房改造|115㎡美式轻奢风,柔和中带着清爽太迷人了!

文章图片

文章图片

文章图片

文章图片

文章图片

文章图片

文章图片

文章图片

文章图片

文章图片

文章图片
这是一套室内115㎡的美式轻奢风住宅 , 奶油色与优雅蓝的搭配营造出一个温馨浪漫的居家氛围 。 用混搭的方式融入美式和欧式气息 , 其中白墙搭配黑色折叠半窗 , 颇有现代美式的风采 , 而莫兰迪蓝色墙壁则是简欧风 , 厕所半墙花砖也很漂亮等等 。 每个空间功能区都有自己独有的特色 , 不同的角度给人不一样的视觉体验 , 空间更为丰富多彩 。
玄关
玄关和餐厅相连壁面的收纳柜 , 内凹台面收纳进出常用小物 , 小吧台餐桌后方收纳占据整个墙面 , 延伸到和玄关相连处 , 形成一个L型收纳空间 。 每个房间设大面积衣柜 , 书房和房间靠窗处卧榻下方也有收纳机能 。
客餐厅
公共空间都以莫兰迪色打底 , 再用白色收纳柜减缓视觉压迫感 , 空间柔和中带清爽 。 屋子本体原有窗户就颇多 , 为了发挥采光优势 , 让大量白色映衬明亮日光 。 和客厅相连的书房、餐厅和厨房改半开放 , 玻璃拉门延展日光 , 像个阳光屋般让人心生向往 。
以混搭方式纳入美式和欧式气息 , 让白墙配黑铁折叠半窗 , 有些美式风范 , 莫兰迪蓝色壁面则是欧风感 , 厕所半墙花砖也很漂亮 , 可在拍近照时增添产品风采 , 切换着不同风格的空间 , 让屋主拍照时比较多选择角度 。
客厅
客厅的窗户占据了一整个墙面 , 采光极好 , 为了延续优点 , 更换全新铝门窗后配白色木百页扇 , 可视需求调整日光引进多少 。 靠窗处有卧榻隐含收纳空间 , 家人访客较多时 , 无需担心座位不够 。
墙面选用淡奶茶色搭配线板 , 温润舒服 , 沙发背墙切换成莫兰迪蓝及线板装饰 , 空间视觉有了主轴 , 以暖色蓝配上柔和奶茶色 , 还有浅色超耐磨木地板 , 勾勒居家自在感 。
特别声明:本站内容均来自网友提供或互联网,仅供参考,请勿用于商业和其他非法用途。如果侵犯了您的权益请与我们联系,我们将在24小时内删除。
