
文章图片

文章图片

文章图片

文章图片

文章图片

文章图片

文章图片

文章图片

文章图片

文章图片

文章图片

文章图片

业主是一名工作极其严肃认真的高管 , 但是其实私下里还是有一个爱玩爱笑的少女心 。 设计师通过和业主的沟通 , 在她的生活和工作中找寻亮点 , 让家居设计也能够变得更加有包容性和灵活性 , 丰富业主的私人空间和生活 。
两居室变身现代时尚样板间 , 用生活编织空间 , 用时间填满角落
房屋户型:两室
房屋面积:85平方米
装修预算:20万
设计师:李文伟
主要建材:线板、木皮、喷漆、大理石、黑铁漆、铁件、玻璃、木地板、壁纸
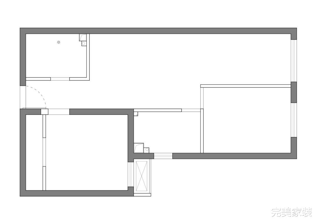
【户型图】
原始户型:
1:户型比较死板是中规中矩的两室一厅 。
2:主卧没有足够的睡眠区 , 储物区的设计又非常的不合理 。
3:玄关处没有足够的收纳空间 , 鞋子没有合适的地方存放 。
4:客厅的走向比较奇怪 , 让餐厅和客厅的连接区域也变得更加不舒适 。
改造重点:
1:打通卧室和厨房之间的隔断 , 让空间形成开放式布局 , 增加足够的采光和活动区 。
2:家里给萌宠预留出了足够的活动空间 , 阳台就是它们的乐园 。
3:增设之前缺少的书房区 , 打造一个兼具休息娱乐的多功能空间 。
【客厅】
设计重点:打通隔断 , 让空间更加宽敞明亮
客厅先拆除了不必要的隔断 , 让阳光可以透过阳台照射进来 , 增加空间的采光和通风的功能 , 视觉上提升了空间的立体感和开阔感 。
特别声明:本站内容均来自网友提供或互联网,仅供参考,请勿用于商业和其他非法用途。如果侵犯了您的权益请与我们联系,我们将在24小时内删除。
