
文章图片

文章图片

文章图片

文章图片

文章图片

文章图片
房屋位于广东广州 , 业主为了孩子上下学更加方便所以入手了一栋40平方米的二手房 , 但是因为是老房子 , 所以存在较多的问题 , 在入住之前 , 业主希望通过改造能够把它变成一个实用为主 , 功能齐全的小家 。
40平方米学区房的大变身 , 展现现代简约之美 , 实用才是王道
房屋户型:两室
房屋面积:40平方米
装修预算:20万
所在城市:广东 广州
设计师:李文伟
主要建材:线板、木皮、喷漆、大理石、黑铁漆、铁件、玻璃、木地板、壁纸
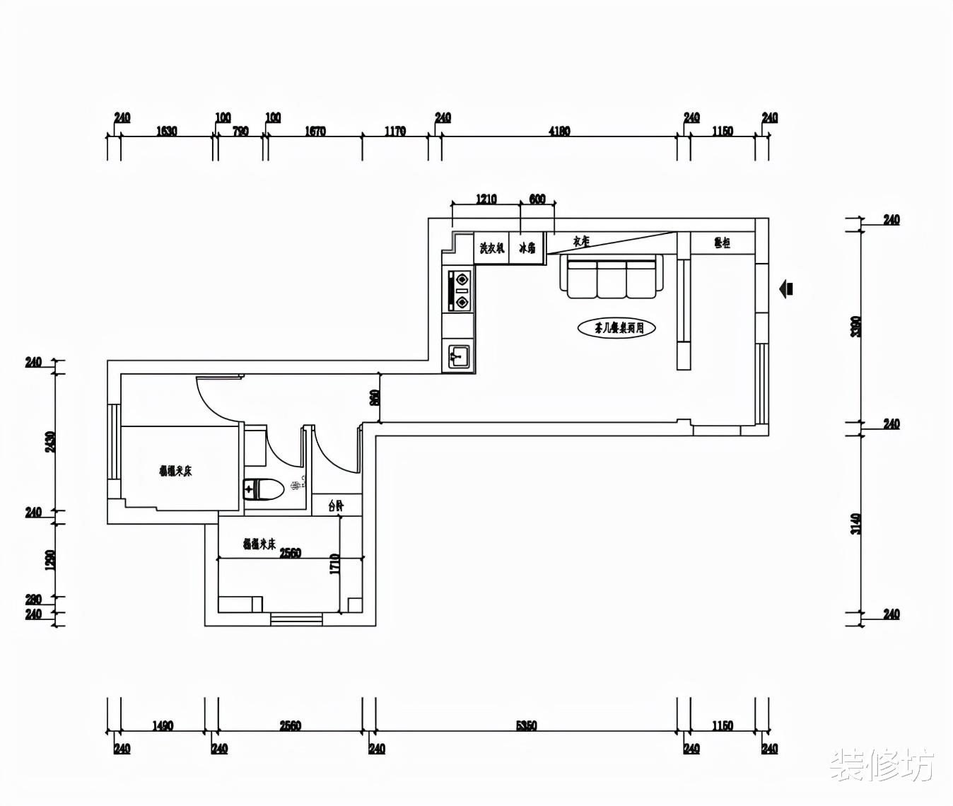
【户型图】
【40平方米学区房的大变身,展现现代简约之美,实用才是王道】户型结构比较简单 , 但是并不是十分的周正 , 所以设计师利用空间的走向 , 重新规划布局和空间的走向 , 为业主一家打造一个简约但是十分实用的两室 , 让业主一家人都可以在这里舒服的生活 , 孩子上学也能更加的方便和开心 。
【客厅】
设计重点:用色彩点缀空间
客厅位于入户门的右手边 , 面积虽然不大但是可以摆放一张超大的三人沙发 , 足可以满足业主一家人在这里看电视享受闲暇时光的需求 。 沙发背景墙也做成了收纳区 , 可以把家里的杂物都整理摆放好 , 再也不用担心空间凌乱 。
客厅和厨房也是共用空间 , 彼此都是开放式设计 , 最大程度地展现出空间的宽敞明亮 。 没有隔断的空间也确保了有足够的采光 , 在客厅也可以直接看到厨房 , 平时父母做饭也能照顾到自己玩耍的孩子 。 这样的布局也省却了餐厅的设计 , 让客厅同时可以充当餐厅使用 , 大大地节省了空间 。
【卫生间】
设计重点:小黑格壁纸便宜又实用
家居改造也需要考虑成本问题 , 所以设计师和业主在改造的过程中也花费了比较多的心思进行选材 , 确保美观实用的同时也要最大程度的节省成本 。 卫生间的小黑格壁纸就是从网上购入的 , 性价比非常的高 , 把卫生间的干净利落展现了出来 。 虽然干湿区没有进行明确的分离 , 但是也不会影响到功能的使用 。
【卧室】
设计重点:私密性强
虽然整个房间的面积比较小 , 但是设计师还是为业主夫妇单独隔出了一个卧室 , 这样能够让业主夫妻在忙碌的工作之余有一个舒适的睡眠环境 , 也能享受享受私密的二人世界 。
卧室保留了一扇小窗可以保证空间的光源 , 搭配纯白的背景墙 , 不论是视觉上还是心情上都能感受到开阔 。 角落里还贴心地为女业主增设了化妆区 , 带有收纳功能的化妆桌虽然简单但是非常的实用和时尚 , 日常女主人在这里可以化妆还可以当做一个临时的办公学习区 。
特别声明:本站内容均来自网友提供或互联网,仅供参考,请勿用于商业和其他非法用途。如果侵犯了您的权益请与我们联系,我们将在24小时内删除。
