86㎡小户型,阳台做个小改动,等于多出一间卧室,太实用!

文章图片

文章图片

文章图片

文章图片

文章图片

文章图片

文章图片
这是一套86㎡的两居室 , 装修用了差不多四个月的时间 , 过程还算比较顺利 , 不仅颜值很高 , 而且实用性也很强 , 特别是给客厅阳台做的一个改造 , 非常的成功 , 等于是让家里多出了一间卧室 , 现在来跟大家分享一下 。
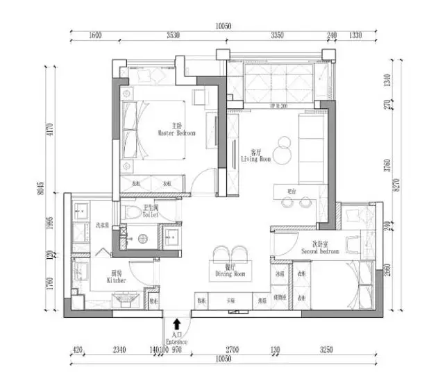
户.型.图
户.型比较常规 , 并不是什么奇葩户.型 , 从平面布局图上面就可以看到 , 客厅的阳台改造成了小型的卧房 , 然后把晾晒的区域移到了厨房外面的小阳台 , 虽然面积小了一些 , 但还是可以接受的 。
入户and餐厅
户.型本身就很紧凑 , 所以玄关的面积也比较小 , 甚至严格意义上来说压根就没有玄关 , 现在的玄关区域不过是我们通过在门口的左右两边各做了一个顶天立地的鞋柜强行划分出来的 。
大门一进来就是餐厅 , 靠墙做了一排卡座 , 为了保证观感上的对称性 , 在卡座的左边也做了一个高柜 , 把烤箱安装在了这里 , 帮厨房分摊了一点空间 。
餐桌椅都是现代风的造型 , 特别是餐桌 , 虽然台面石仿大理石材质的 , 但是非常的轻薄 , 既有质感也不会显得厚重 , 非常的漂亮 。
家里的色彩元素只有黑白灰 , 甚至连黑色都很少 , 大部分都是白色和灰色 , 给人一种高冷的感觉 , 可能有些人会不喜欢 , 但是本人真的很迷这种范 , 我们都喜欢在这种酷酷的感觉 。
客厅
客厅做了一个小型的吧台区域 , 平时在这里喝喝酒、聊聊天 , 有时候还会工作看书 。
吧台的这一面也没有浪费 , 做成了一个开.放.式的储物柜 , 各种杂物都可以放在这里 。
灰色的墙面 , 灰色的布艺沙发 , 灰色的装饰画 , 虽然都是一样的颜色 , 但是不同的深浅 , 让空间里的色彩元素变得有了层次感 。
电视背景墙则是打满了柜子 , 大部分的柜子都是安装的弹簧器柜门 , 这样就不用安装明面上的门把手 , 整体的观感就显得舒服了很多 。
阳台的区域其实改动也不复杂 , 左边做了衣柜 , 右边则是做了一个简易的书桌 , 中间就是现在很常见的榻榻米 , 不仅储物功能很强大 , 平时还能当一个简易的客房使用 , 真的是非常实用的设计 。
厨房
厨房的墙面和地面都是灰色的瓷砖 , 白色烤漆工艺的橱柜和吊柜 , 搭配上白色的石英石台面 , 整体显得简洁又大气 。
特别声明:本站内容均来自网友提供或互联网,仅供参考,请勿用于商业和其他非法用途。如果侵犯了您的权益请与我们联系,我们将在24小时内删除。
