世纪城120㎡现代风格装修丨把自然藏进家里,我找到了不出门的理由

文章图片

文章图片

文章图片

文章图片

文章图片

喜欢一缕清风 , 想把它留在家里 , 藏纳阳光的温度 , 收集花果的清香 , 于是在森林里种下了一个家 。
现代家居承载起时代里的时尚感 , 将满眼的原木家具恰到好处的融入其中 , 在清新绿色的加持下 , 家变得仿佛会呼吸起来 , 轻松得外界喧嚣全然与自己无关 。 一起来感受会呼吸的家吧 。
案例分享项目楼盘:官渡区 世纪城
项目面积:120m2
项目风格:现代风格
设计师:李才成
设计师李才成
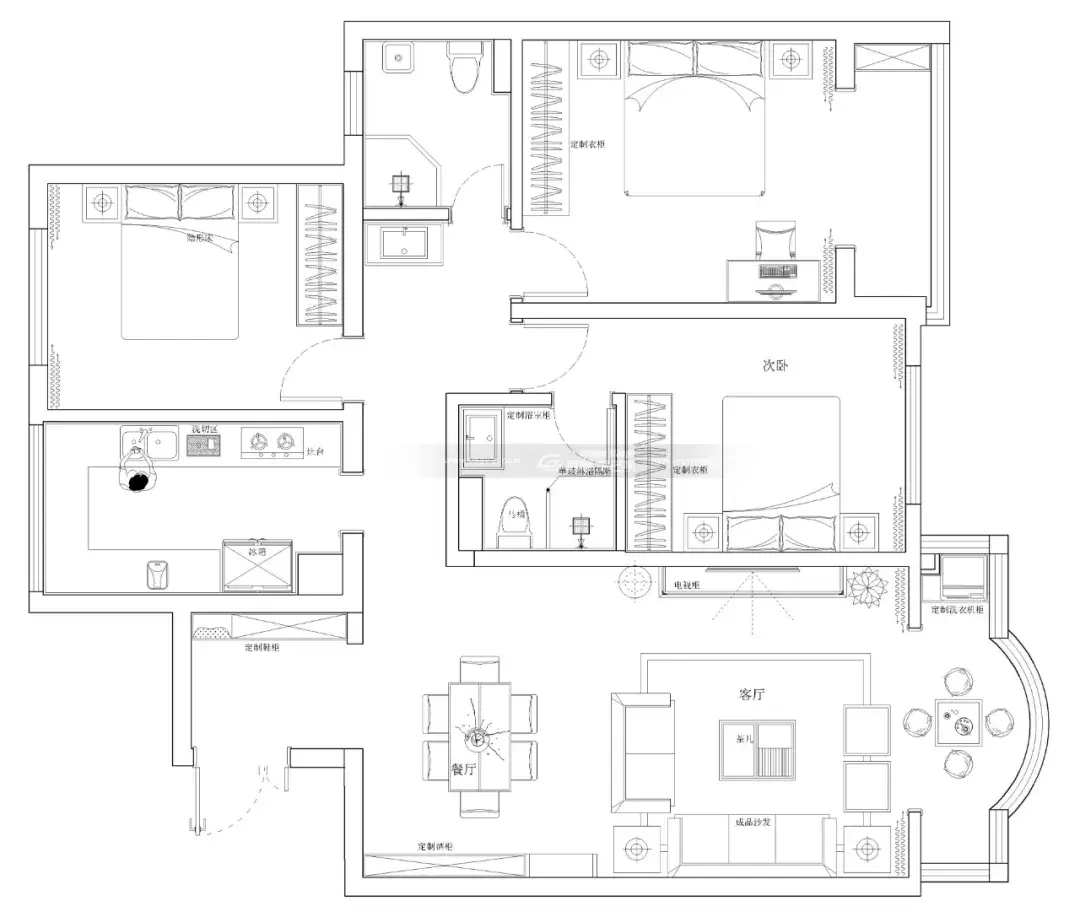
平面布置
平面布置
01治愈の客厅我未回家 , 只是在森林里种下了一张沙发 。 入目无他色 , 所及皆温柔 , 通透的绿色汲取了自然的活力 , 在斑驳的阳光里书写着冬夏 。 圆润的弧度让家居变得温柔可爱 , 背景墙设置格栅和台板 , 井然有序的叙述着简单的小美好 。
客厅
大理石遇见清新原木 , 坚硬的石材与细腻的木质 , 可以独当一面 , 也可以无限温柔 。
客厅
柔软的地毯摩挲着脚掌 , 可爱的单椅 , 让身体有了更多愿意舒展的理由 。 独特的门洞造型 , 灯光照射出柔和的斑驳的光影 , 一切的暖意和精致都无处藏身 。
客厅
02 美味の餐厅滋滋作响的水汽 , 色泽透亮的水果 , 在宣告着美味时刻的到来 , 在清新的原木餐桌椅上 , 吃一顿可口的饭菜 , 生活再忙 , 也别忘了心疼自己 。
餐厅
03 烟火の厨房如果没有锅碗瓢盆 , 也许不必费太多心思 , 但生活是否会少了许多味道 。
厨房
04 宁静の书房满屋的木香气混合着书香气 , 书页摩挲的质感和木材的质感相互融合 , 纯净的颜色 , 轻薄的纱帘 , 让一切都变得简单 , 留更多的自己沉浸在书里 。
书房
书房
05 舒适の卧室时光轻轻 , 风也不燥 , 温暖的橘色和木色 , 为空间注入更多的暖意 。 柔和的灯光、弧度招来阵阵睡意 , 安逸、轻柔 , 让家无比舒适 。
卧室
【世纪城120㎡现代风格装修丨把自然藏进家里,我找到了不出门的理由】
特别声明:本站内容均来自网友提供或互联网,仅供参考,请勿用于商业和其他非法用途。如果侵犯了您的权益请与我们联系,我们将在24小时内删除。
