建筑面积82㎡,套内64㎡的三室一厅,用15万装修成慵懒风格

文章图片

文章图片

文章图片

文章图片

文章图片

一套建筑面积82㎡、套内面积64㎡的小家 , 该如何装修改造才能让人觉得宜居又舒适呢?最近 , 一位姑娘就展示出了自己刚刚改造完成的家 , 你别说 , 还真挺漂亮的 。
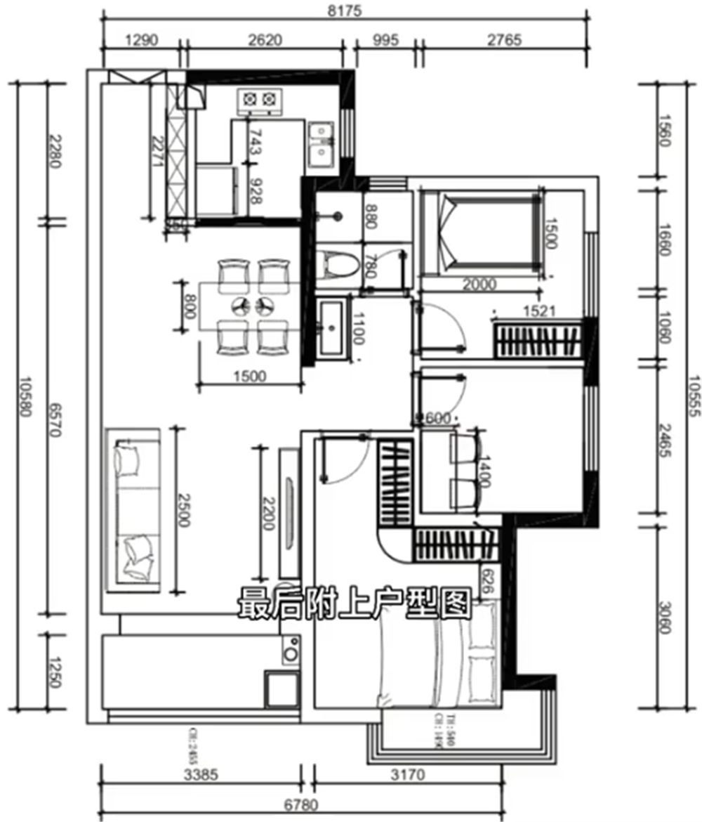
我们先来看看户型图再说吧~
房屋户型图
从房屋户型可以看到 , 这个家其实是小三室的格局 , 客餐厅、厨卫空间、次卧书房的面积都不大 , 只有主卧相对来说宽敞一些 , 但即便是这样 , 这位姑娘仍旧将其巧妙设计成了宜居的家 。
入门玄关
入门的玄关是一个窄小的过道区域 , 姑娘利用一整面墙的空间 , 做出了通顶的玄关柜 , 上面是收纳日常杂物的空间 , 下方是鞋柜区域 , 中间则留出了开放式的柜格收纳钱包、钥匙等随身小物 , 非常方便 。
客厅和阳台相连
客厅和阳台直接打通 , 做成一体式的设计 , 而且瓷砖通铺也减少了清洁死角 , 打理起来非常的方便 。
客厅区域中 , 姑娘最满意的就是沙发的设计 , 四人位的浅灰色大沙发摆在空间中 , 看上去简单又高级 。
电视墙的电视柜采用了“悬浮”式设计 , 白色的柜体搭配这种壁挂设计 , 带给人一种轻盈、灵动的感觉 , 高级感满满 。
而阳台区域则分位了两个功能区 , 一边是洗衣晾晒的区域 , 另一边则摆上了小桌椅 , 当做休闲的下午茶区域 , 在这里晒晒太阳、看看书、小憩片刻 , 别提多惬意了 。
【建筑面积82㎡,套内64㎡的三室一厅,用15万装修成慵懒风格】餐厅和厨房区域
餐厅和厨房的空间都不大 , 在餐厅中 , 一张一米五的四人位餐桌 , 满足家里人日常用餐的需求 , 桌面基本保持净空的状态 , 看上去整洁又干净 。
而餐桌后方 , 就是家里的方形小厨房了 。
厨房橱柜采用U形设计 , 平日里即便是夫妻搭配下厨 , 也不会觉得拥挤 , 而且这样的格局设计 , 也提升了收纳和烹饪便利性 , 看上去很舒服 。
卫生间的设计
卫生间差不多是个“低配版”的三分离设计 , 洗漱区和里面的如厕区、沐浴区隔开 , 同时马桶也和淋浴房用玻璃隔断进行分隔 , 巧妙分开了干湿区域 。
只不过 , 姑娘觉得有些遗憾的地方是卫生间的瓷砖 , 花纹选得有些复杂 , 让人感到些许的杂乱 。
马桶区域非常窄 , 所以只好用一个窄小的垃圾桶放在旁边 , 倒是刚好填补了冗余的空间 。
而浴室中 , 为了减轻这种狭窄的感觉 , 花洒也被换成了纯白色的 , 看上去明亮很多 。
主次卧室
主卧空间相对大一些 , 一进门是L形的橱柜区 , 里面的床和飘窗相互连接 , 搭配天花板上的装饰羽毛吊灯 , 看上去温馨又慵懒 。
特别声明:本站内容均来自网友提供或互联网,仅供参考,请勿用于商业和其他非法用途。如果侵犯了您的权益请与我们联系,我们将在24小时内删除。
