
文章图片

文章图片

文章图片

文章图片

文章图片

文章图片

文章图片

文章图片

文章图片

文章图片

文章图片

文章图片
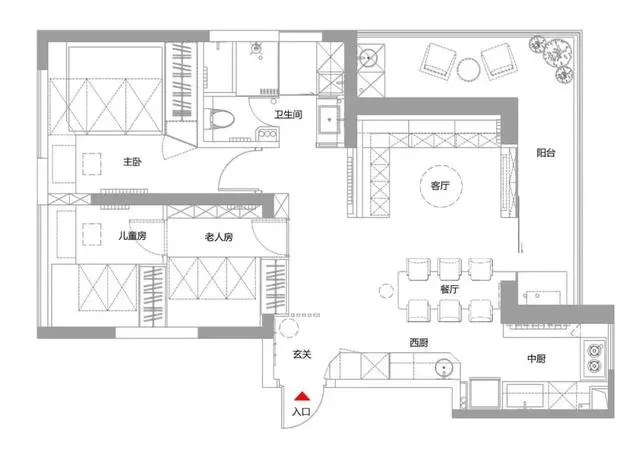
这套89平米的房子 , 原户型是两居室 , 但因为屋主需要多一间房 , 设计师便舍弃了电视墙 , 将餐厅改到了客厅和厨房中间 , 而原来餐厅空间结合次卧做成了两间房 , 这样一来 , 原来的两居就变成了三居 , 极大提高了空间利用率 , 满足了屋主需求 。
▲ 平面布局图
【89㎡两室改三室,客厅不买沙发,舍弃电视墙,围合卡座超实用】玄 关
▲ 进门就是客厅 , 考虑到入户隐私性 , 便在入户门对面加了一道原木栅栏隔断 , 既不会影响采光 , 视觉效果也很自然大方 。
▲ 换个角度 , 可以正面看到玄关 。 进门右手边的鞋柜与西厨橱柜相连 , 无把手的设计让柜体的立面看起来更大气美观 。
西 厨
▲ 这里是西厨区 , 大面积的整体橱柜 , 将大大小小的厨房电器都容纳其中 , 浑然一体的结构不仅实用漂亮 , 利用率也很高 。
餐 厅
▲ 西厨旁边就是餐厅 , 餐桌是用石质台面加木质主体结构打造而成的 , 冷硬与温润和谐搭配 , 整个空间看起来简洁富有生机 。
▲ 厨房和餐厅的地面做了明显区分 , 一边是瓷砖 , 一边是木板 , 不规则的线条划分 , 充满个性与活力 。 绿色的橱柜 , 也为这个以白色和原木色为主的居室带来了更多的美感 。
厨 房
▲ 这是中厨区 , U型布局利用率高 , 但因为空间不够宽敞 , 所以左边没有做橱柜 , 但一字型台面也为厨房增加一些摆放和备菜空间 。
特别声明:本站内容均来自网友提供或互联网,仅供参考,请勿用于商业和其他非法用途。如果侵犯了您的权益请与我们联系,我们将在24小时内删除。
