往往最实用的家,都不需要过多的改造,像她家,简单又耐看

文章图片

文章图片

文章图片

文章图片

文章图片

文章图片

文章图片

文章图片

在空间设计中 , 我们知道巧妙的结构改造 , 不仅可以提高空间的实用性 , 还可以改善居住舒适性 。 所以很多人在拿到新房的那一刻 , 就开始琢磨如何来改造空间了 。 那么是不是所有的新房 , 都必须要做空间改造呢?事实上 , 显然不是这样的 。
对于一个优质的户型来说 , 即便不对空间进行改动 , 也依然能做到实用 。 并且往往最实用的家 , 也不需要过多的改造 。 毕竟改动越少 , 装修成本就越少 。 像下面这套案例 , 屋主就保留了原有的空间结构 , 虽说设计比较简单 , 但效果真的是很耐看 。
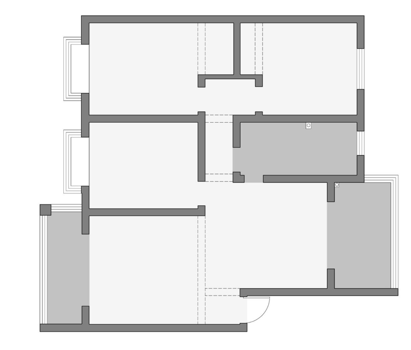
平面结构图
新房坐标南京 , 建面129㎡ , 三室两厅一厨一卫的格局 , 常住成员有夫妻俩、孩子、以及孩子的奶奶 。 由于是三代同堂的成员结构 , 所以屋主希望新家是简单、实用的 , 并倾向慢生活方式的氛围感 。
原户型比较常规 , 虽说没有那么的优质 , 但也没有明显的硬伤 。 所以在空间布局这块 , 也主要是以优化舒适性及实用性为主 , 并没有做结构改动 。
平面方案图
结合屋主的需求 , 空间布局如下
1、进门对面增加玄关柜 , 解决日常的收纳需求 , 并遮挡客厅的隐私 。
2、厨房和阳台全都保留移门隔断 , 这样既彻底隔绝了油烟 , 也提高了隔音隔热的效果 。
3、考虑到卫生间面积够大 , 在干区单独设计洗衣机 , 可以让衣物实现分类清洗 。
4、主卧增加衣帽间 , 尽可能地提高空间的收纳能力 。
玄关
原户型进门就是客厅 , 不仅没有任何的隐私 , 还缺少收纳区 。 因此 , 直接在进门对面增加玄关柜 , 既解决了基本的收纳需求 , 也重新优化了入户动线 , 从而让回家更有仪式感 。 柜体底部与中部镂空 , 则在减轻柜体厚重性的前提下 , 也丝毫不会影响实用性 。
裸露的电表箱 , 采用一幅装饰画来遮挡 , 虽说是比较常见的处理方式 。 但在墙面以低饱和度灰为主的情况下 , 却也点缀出了一抹趣味 。 同时 , 再通过暖色灯光的烘托 , 立马就让整个玄关区彰显出了简约而又质朴的气息 。
特别声明:本站内容均来自网友提供或互联网,仅供参考,请勿用于商业和其他非法用途。如果侵犯了您的权益请与我们联系,我们将在24小时内删除。
