
文章插图
项目名称
海南万宁初家现代别墅
图纸编号
【农村堂屋摆设 农村堂屋的布置风水】1017
建筑面积
395㎡
占地面积
147㎡
建筑尺寸
13.1m×12.2m
建筑结构
框架结构
参考造价
65万元(不含室内装修费用)
项目概况

文章插图
总平面示意图
项目简介:
项目位于风景优美的海南地区,南北朝向的三层现代风格别墅 。
平面布局
户型概况:
3层 / 5室 2厅 7卫 1厨 1书房 1茶室 1健身 1设备 1工具 3露台

文章插图
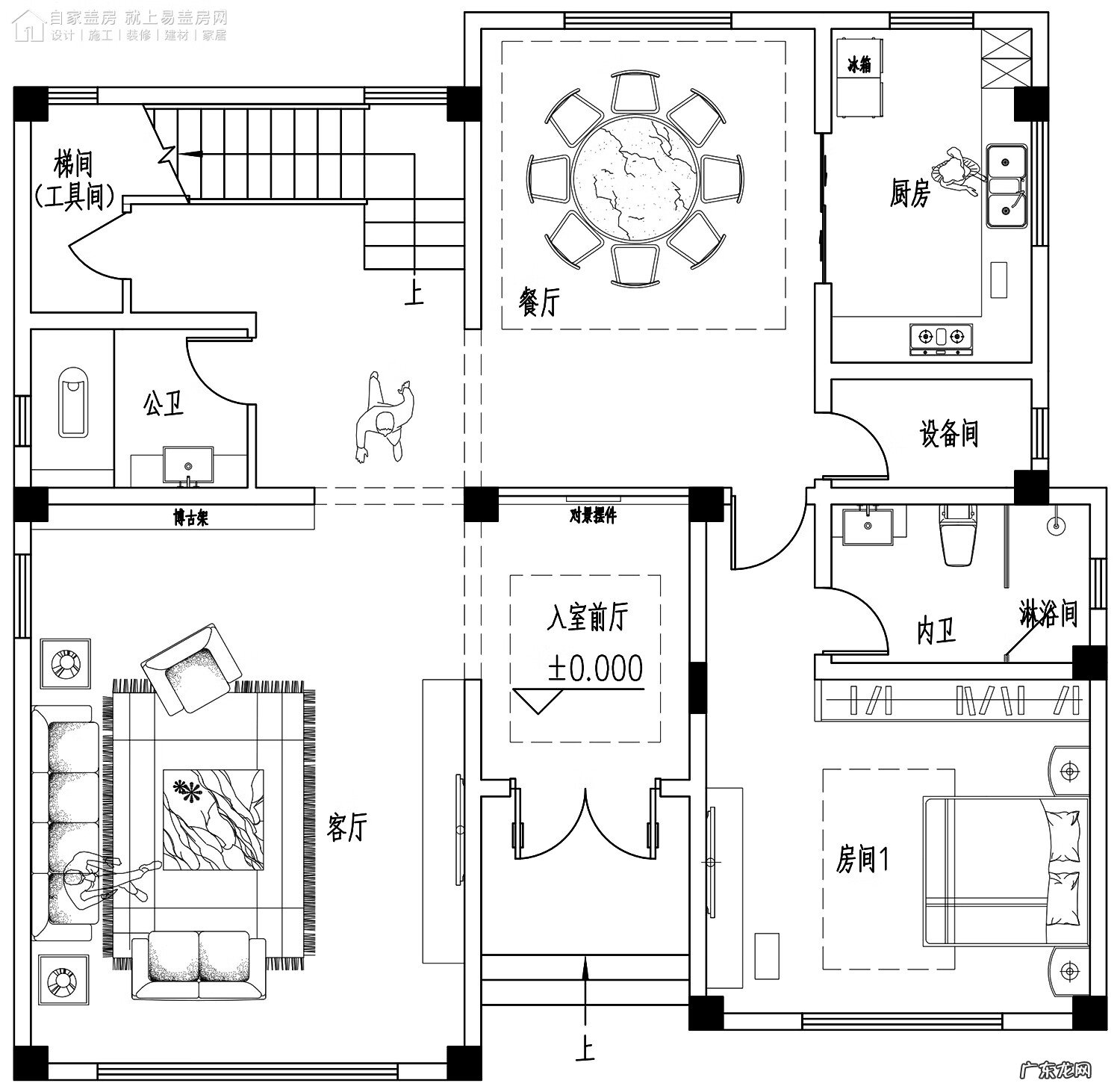
一层平面图
建筑一层平面充分考虑风水进行布局,入户玄关空间设计为堂屋形式的前厅 。

文章插图
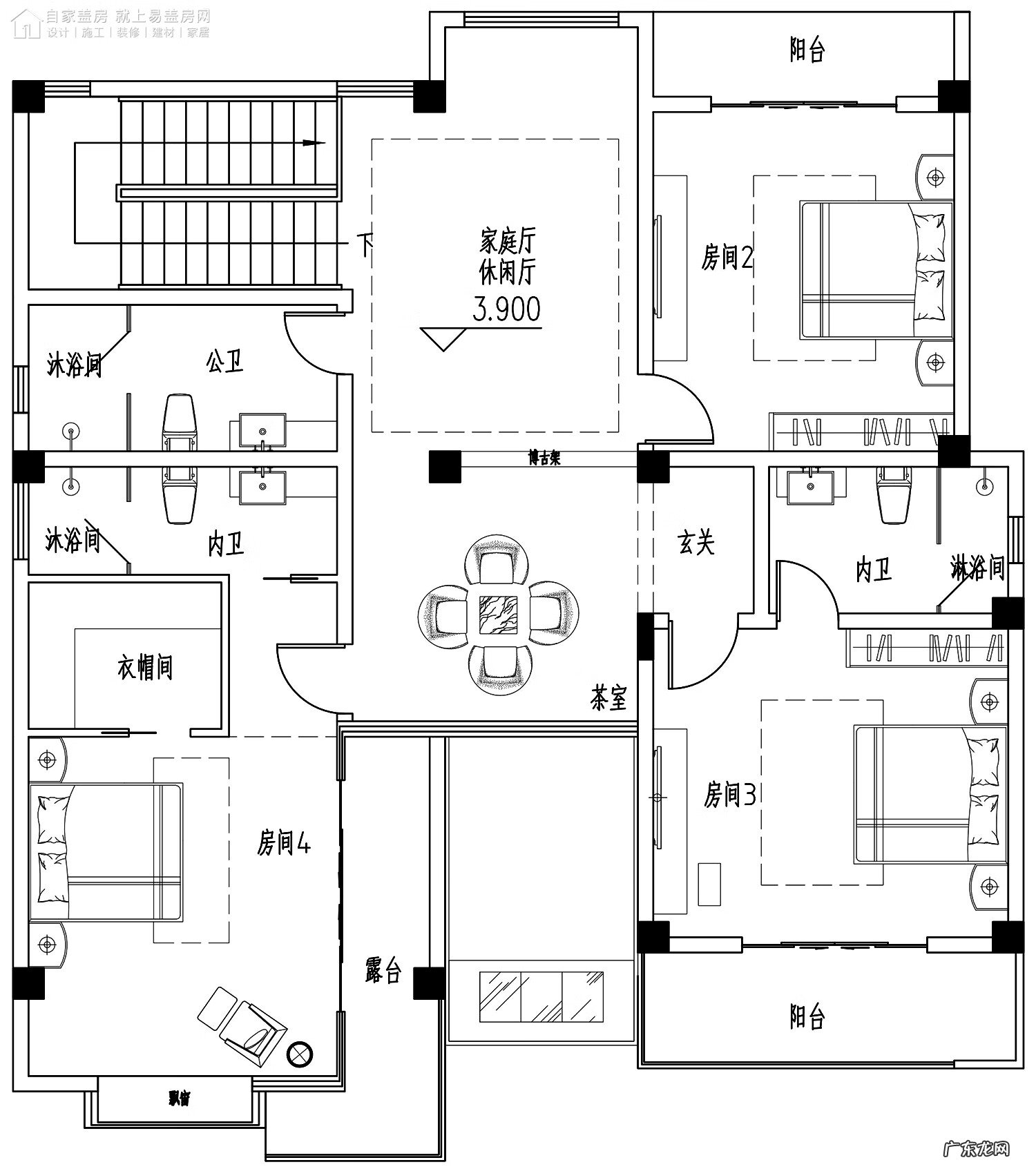
二层平面图
二层空间布置更多卧室满足居住刚需,同时搭配茶室、休闲厅等丰富休闲功能 。

文章插图
三层平面图
三层为业主自住空间,整体分为东侧的居住空间和西侧的大面积露台两部分 。
造型设计

文章插图
南侧效果图

文章插图
东南侧效果图
建筑整体的层次感非常丰富,大量透明材质的运用配合矩形体块起伏,使得整体线条感更加硬朗,在视觉上极具几何美感 。

文章插图

文章插图
立面方面,色调上通过白、灰与裸色木材形成对比,整体质感鲜活灵动 。

文章插图

文章插图
立面开窗造型多变,完全摒弃传统现代风格建筑窗框造型单一的问题,配合线条、材质变化,每处开窗都作为整体造型的极佳点缀 。

文章插图

文章插图

文章插图

文章插图
- 树枝压房顶风水 房顶长树风水
- 倩女幽魂手游家园摆设图 倩女幽魂道具大全
- 农村东西厢房的风水 农村房屋东面风水图解大全
- 农村围墙大门风水吉利高度 农村围墙风水吉利高度三米
- 村庄风水怎么看 村庄风水知识
- 接骨草 用农村草药治疗半月板撕裂医案分享
- 方塘在哪里 门口有方塘的风水
- 种竹子风水 干竹子的风水
- 宾馆风水怎么看 宾馆大厅风水摆设图片
- 农村普通鸡舍图片大全 农村鸡舍风水方位图
特别声明:本站内容均来自网友提供或互联网,仅供参考,请勿用于商业和其他非法用途。如果侵犯了您的权益请与我们联系,我们将在24小时内删除。
