
文章图片

文章图片

文章图片

文章图片

文章图片

文章图片

文章图片

纵观整个建筑历史长河 , 很多建筑大师的首秀或出名的作品都源自对于自己住宅的设计 , 对于建筑师设计自宅 , 这是一次显然很独特的体验 , 同时作为甲方和乙方的角色出现 。 作为甲方 , 建筑师明显对于自己想要的空间思路清晰 , 而作为乙方 , 对于设计的表达更是手到擒来 。 两者一结合在一起 , 这明显是关于建筑师对设计理解的答卷 , 它能凸显出建筑师对于设计的深层次思考 。 并且 , 在某种意义上 , 关于的设计的自由度相当高 , 这为建筑设计的土壤提供了天然的优势 。 今天小编就要给大家介绍一个建筑师对自宅的改造设计 , 看它是如何呈现作为甲乙双方的双重身份的一次激情尝试 。
建筑外观
该项目位于澳大利亚 , 这是一个项目改造翻新的项目 , 这个住宅在以往的三十年里 , 迎来了它的第三次改造 。 时间的跨度 , 说明了随着时间的流逝 , 以往的空间早已无法满足现在的使用需求 , 这是每一个住宅空间都会面临的问题 。 因此 , 以这次改造设计为契机 , 建筑师想要在时间维度上 , 满足当下的使用需求前提下 , 同时考量未来的生活方式的需求 。
建筑外观
卫生间
客厅
家庭活动室
过道与楼梯
外部的翻新是随着内部空间调整后做出的回应 , 比如朝向道路一侧的玻璃幕墙 , 首层是一个客厅 , 二层则是一个卧室 , 它们作为对外的立面展示 , 充分的展示了其对于自然采光的重视 。 整个立面的通透及开放 , 可以让它们拥有最佳的采光面 。 不仅是客厅 , 厨房和餐厅朝向北侧的立面 , 也是以大面积的玻璃面与外部庭院产生联系 。 这就是作为生活起居的公共空间的自我修养 , 要阳光、自然风、自然景观 , 这是作为家居空间所必须的品质保证 。
学习室
学习室
餐厅
厨房
卫生间
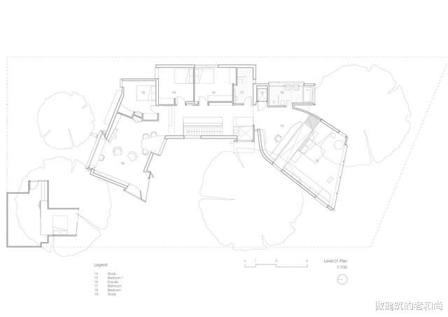
建筑的平面整体呈现类似V字型 , 凹口处便是建筑的主入口 , 并在这里的室外设置了一个露天泳池 , 一个舒适的户外活动区便得到了 。 与之相匹配的立面背后是一个楼梯 , 它与过道一起成为建筑的交通枢纽 , 不管是连接各个首层不同区域内的公共空间 , 还是连接上下层空间 , 总之它完成了最佳的衔接 。
特别声明:本站内容均来自网友提供或互联网,仅供参考,请勿用于商业和其他非法用途。如果侵犯了您的权益请与我们联系,我们将在24小时内删除。
