
文章图片

文章图片

文章图片

文章图片

文章图片
【她家称为“神设计”都不为过!60㎡,三代人居住,收纳还特别多】

文章图片

文章图片

文章图片

什么样的设计可以称为“神设计”?在我看来 , 除了要满足居住者的需求之外 , 对空间的细节优化也要到位 。 也只有这样 , 新房装修好之后 , 才能更加贴合居住者的生活方式 。
本期带来的这套案例 , 就可以毫不夸张地称为是“神设计” , 在空间面积仅60㎡的情况下 , 不仅解决了三代人的居住需求 , 在收纳规划 , 居住体验这块 , 也优化的十分不错 。 同时 , 温暖的空间氛围 , 还让人一进门就能感受到家的温度 , 非常值得我们来学习 。
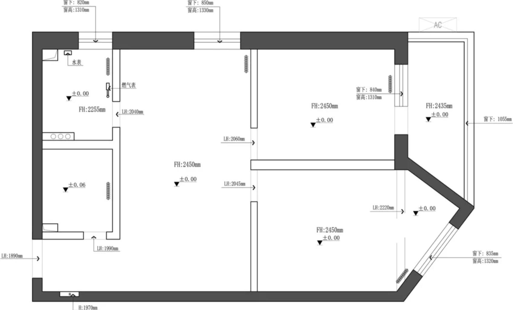
平面结构图
本案坐标北京 , 两室一厅一厨一卫的格局 , 由于屋主夫妇有二胎的计划 , 需要老人偶尔过来帮忙 , 所以至少需要满足5口人的居住需求 。 因此 , 在原空间只有两间卧室的情况下 , 显然是无法满足居住需求的 。 同时 , 空间本身存在的硬伤也非常多 。 比如缺少收纳空间、厨卫面积太小 , 客餐厅通风、采光差等等 。
平面方案图
结合现有的空间情况 , 布局这块也做了比较大的调整 。 比如儿童房与客餐厅对调 , 并重新分配空间面积 , 从而解决掉客餐厅采光、通风差的问题 。 同时 , 异形阳台采用榻榻米设计 , 为空间延伸出第三个房间 , 解决老人的居住需求 。
在厨卫改造这块 , 则将厨房做了扩大处理 , 并做了分离式设计 。 这样既能提高空间的使用面积 , 也能彻底地解决油烟问题 。 而卫生间在扩大之后 , 则采用了双动线设计 , 以便最大化提高空间的使用率 。
玄关
当空间结构重新调整之后 , 进门右手边则设计了整面墙的储物柜 。 这样既将空间面积充分利用了起来 , 也可以在功能上做到各自独立 。 比如隔层抽屉与高柜组合的玄关柜 , 就满足了日常鞋子的收纳需求 , 并保证了使用的舒适性 。
而将柜体底部悬空 , 以及中间位置镂空 , 并暗藏上暖色的灯光 , 不仅在视觉上做到了轻盈 , 又为空间增添了一抹温度 , 从而让回家更有归属感 。
紧挨着玄关柜 , 就是一组功能柜 , 高柜底部内嵌洗衣机 , 上面用来储物 , 完美兼具了家政区的功能 。 而旁边的矮柜 , 在预留插座之后 , 也满足了水吧台的使用功能 。 同时 , 为了不浪费柜体面积 , 柜体全部用抽屉来设计 , 也是相当的细节化 。
特别声明:本站内容均来自网友提供或互联网,仅供参考,请勿用于商业和其他非法用途。如果侵犯了您的权益请与我们联系,我们将在24小时内删除。
