亿伽设计│酒店设计│集装箱公寓酒店:用回收集装箱构成的现代化公寓酒店

文章图片

文章图片

文章图片

文章图片

文章图片

文章图片

灵活住房
据亿伽酒店设计了解 , DSK工作室在伦敦的街区设计了一座全新的公寓酒店 。 为了满足伦敦市中心灵活住房的趋势 , 该项目将精品酒店的质感与公寓的私人化体验进行了结合 , 带来具有适应性的高品质空间 , 能够满足居住者对生活、工作、餐饮和睡眠等各方面的需要 。
鳍状元素
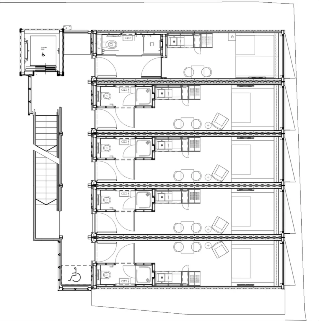
酒店设计方案将重点放在简洁性、坚固性和耐用性上 。 酒店拥有一个5层高的模块化体量 , 每个房间均由30英尺的回收集装箱构成 。 它引人注目的外立面由一系列钢制鳍状元素焊接而成 , 兼顾了保护隐私和遮阳的功能 。 多表面的屏墙使建筑在不同的角度呈现出不同的观感 , 从而为之赋予了变化的特征 。 鳍状元素的内部涂以暗橙色 , 呼应了集装箱常用的耐候钢材质 。
玻璃
【亿伽设计│酒店设计│集装箱公寓酒店:用回收集装箱构成的现代化公寓酒店】每间公寓的窗户均包含一个简单且固定的高性能双层层压玻璃单元 , 并通过印在玻璃下方的网纹来保证空间的私密性 。 首层的接待区和Unwined酒吧为当地居民和Lower Marsh街上的行人提供了一处振奋人心的休闲目的地 。
隧道效应
酒店客房简单而紧凑的布局和配置使房间的功能和体验得到了优化 , 并搭配以高品质的天然木材和大理石饰面细部 。 厨房中配备了洗碗机、水槽、微波炉等日常器具 。 卧室的软垫墙壁兼顾了电视墙的作用 。 柔和的渐变配色使空间看上去更加宽敞 , 并借助“隧道效应”保证了居住者的舒适体验 。 设计的一个关键点是使空间与周围的城市环境紧密相连:半封闭的后墙使住客能够眺望伦敦南岸区的广阔天际线 。
特别声明:本站内容均来自网友提供或互联网,仅供参考,请勿用于商业和其他非法用途。如果侵犯了您的权益请与我们联系,我们将在24小时内删除。
