
文章图片

文章图片
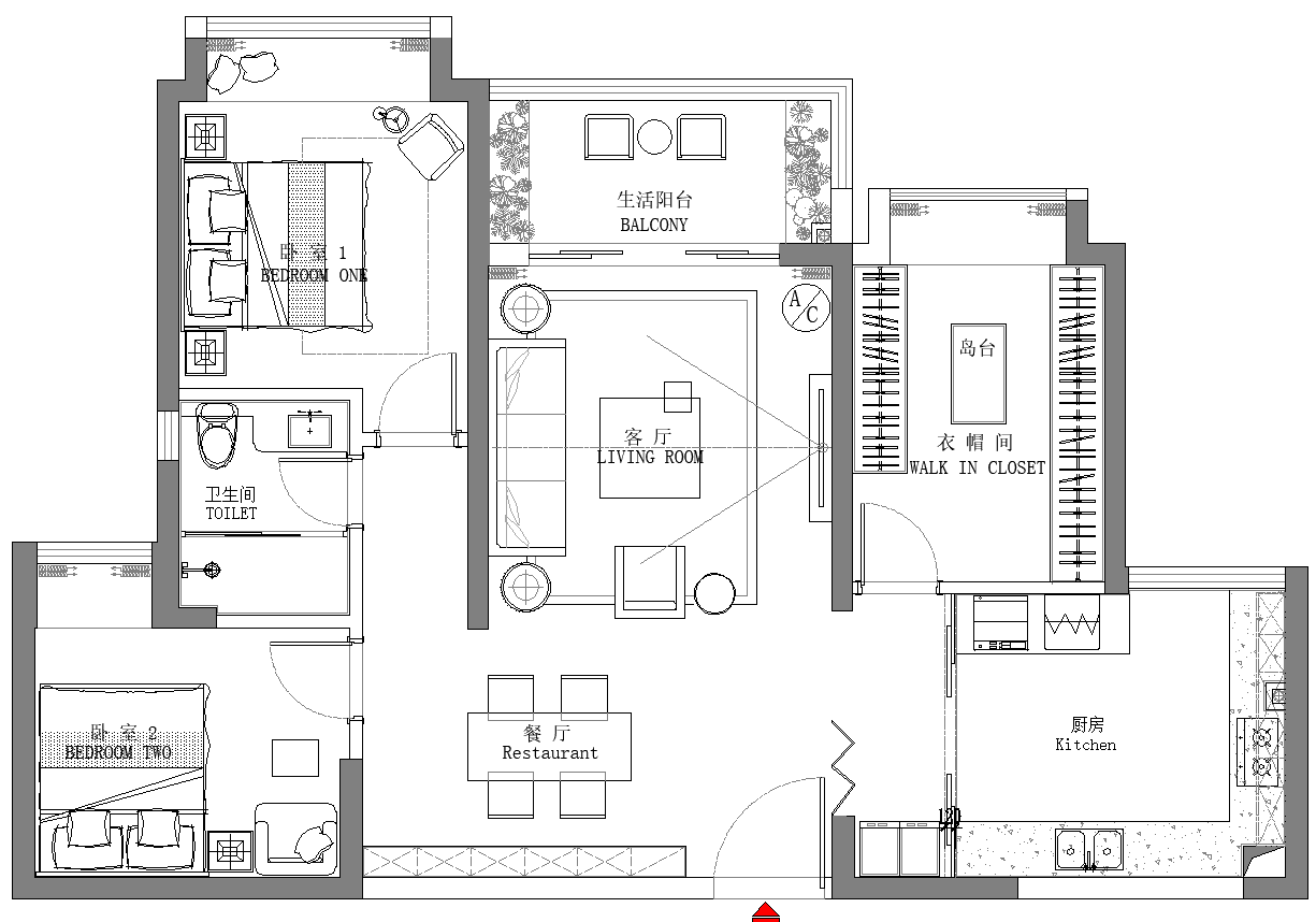
项目简介
项目地址:中澳春城
项目类型:家居
项目面积:118平方米
全案公司:蓝迪装饰
设计风格:日式风格
全案设计:肖宇
太阳照耀着白昼 , 月亮装饰着夜晚 , 当日月相聚则是难得的幸福时刻 。
由于工作关系 , 夫妻二人虽然同处一个屋檐下 , 却不得不分房而睡 。 共同在房间内便是难得的幸福时光 。
清晨 , 丈夫值完夜班回到家 。 洗手间没有被划归到任何一个卧室之内 , 而是作为公共空间使用 。 丈夫冲凉也不会打扰熟睡中的妻子 。
为了不打扰到妻子的休息 , 丈夫还是轻手轻脚地回到自己的房间 。 温柔的木地板不会发出声响 , 柔软的沙发刚好放下丈夫的公文包 , 也不会发出响声 。 为了不影响白天补觉 , 这间卧室的窗户并不宽大 , 一盏垂吊的小灯刚好可以点亮丈夫的美梦 。
(家装设计装修案例)直到下午时分 , 丈夫才从卧房走出来 , 为妻子准备一份温馨的晚餐 。 家中的一切都是二人共同的策划 , 选用木质家具更加温柔 , 在垂灯的照射下更加温馨 。 妻子推门进家 , 看到如此温馨的一幕 , 幸福感油然而生 。 两人共享晚餐 , 共同收拾餐桌 , 共同洗碗 。 这段时间是难得的二人时光 。
晚饭之后 , 两人相互依偎在沙发上 , 打开了电视机 , 而且木质也许是白天有些疲惫 , 也许是室内太过温馨 , 也许是对另一半的绝对放心 , 没有太长的时间 , 妻子在丈夫的怀中渐渐泛起了睡意 , 侧躺了下去 。 丈夫知道 , 此时该回屋睡觉了 。
(家装设计装修案例)丈夫搀扶着妻子回到了主卧 , 这是一个更加温馨的房间:一高一矮 , 两盏床头灯泛出昏黄的灯晕 。 窗外的月亮也只是发出淡淡的光亮 , 将飘窗上的茶几座椅铺上一层朦胧的月色 , 让整个房间更加地素雅温馨 。 房间并没有过多的装饰 , 唯有一幅水墨山水 , 提升了房间的气质 。
当丈夫将妻子扶到床上 , 拉好窗帘 , 关上了最后一盏台灯 。 哄睡了妻子后 , 又要准备出门了 。 在关闭房门之前的那一刻 , 他再一次看了看妻子 。 也许她在做梦吧 。 具体会梦到什么?我们无从得知 , 但是从她微微上翘的嘴角上看 , 应该是一场美梦吧 , 毕竟这段时间如同日与月相聚 , 是一段幸福的时光 。
【日与月的相聚——118平方米日式风格 | 中澳春城家装设计案例】
(家装设计装修案例)
特别声明:本站内容均来自网友提供或互联网,仅供参考,请勿用于商业和其他非法用途。如果侵犯了您的权益请与我们联系,我们将在24小时内删除。
