老房变新房,看设计师如何对老房进行爆改,连角落也不放过

文章图片

文章图片

文章图片

文章图片

文章图片

文章图片

文章图片

文章图片

文章图片

文章图片

文章图片

文章图片

文章图片

文章图片
老房变新房 , 看设计师如何对老房进行爆改 , 连角落也不放过
当你看过远方的山脉 , 欣赏过早起的日出 , 越会发觉家的温馨和意义 , 渴望那简单平凡的烟火气 , 只有在那个地方我们才能轻松的大笑 , 放心的大哭 , 去体验别人无法感受到生活乐趣 。
房屋户型:两室
房屋面积:131平方米
装修预算:40万
设计师:李文伟
主要建材:铁件、石材、人造石、系统柜、木作、油漆、玻璃、仿清水模漆
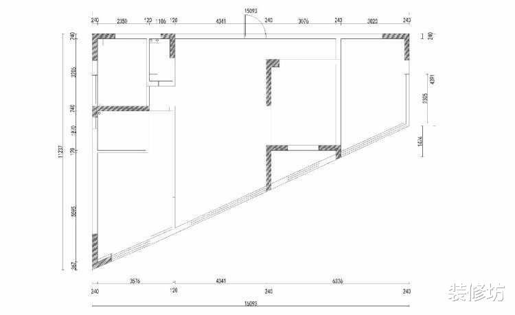
【户型图】
原始户型比较不规则 , 空间死角比较多 , 卫生间内部空间比较狭小 , 没有做好干湿分离 。 主要的生活区面积也是比较狭窄 , 无法满足日常的生活需求 。
改造之后的空间更加清晰和简单 , 空间相互独立 , 同时功能也得到了完善和保证 , 不论从外观看起来还是使用起来都更加的舒适和自然 。 流畅的空间动线大大缩短了日常的活动轨迹 , 也提高了生活的质量和格调 。
【客厅】
设计重点:清新浅蓝给人开阔的空间感
【老房变新房,看设计师如何对老房进行爆改,连角落也不放过】客厅主打简约清新风 , 选用了非常清透的淡蓝色和暖白色作为主色 , 弱化了空间的棱角感 , 展现出更加温柔和细腻的一面 。
特别声明:本站内容均来自网友提供或互联网,仅供参考,请勿用于商业和其他非法用途。如果侵犯了您的权益请与我们联系,我们将在24小时内删除。
