不愧是年轻人的家!以“主题”定位空间,完工后又酷又有特点

文章图片

文章图片

文章图片

文章图片

文章图片

文章图片

文章图片

文章图片

相信很多人在装修新房时 , 首先考虑的都是空间风格 。 可随着生活节奏的加快 , 每个人的生活方式、生活态度、以及空间审美 , 也在慢慢地改变 。 尤其是在年轻人的群体中 , 更是会拒绝千篇一律的装修设计 , 并将自己的热爱装进新家 , 从而让空间体现出自己的个性 。
比如本案中的这位屋主 , 由于是一位十足的篮球迷 , 且偶像是巨星科比 , 所以很希望将“曼巴印记” , 融入到空间中 。 而这既是对偶像的致敬 , 也是自己对生活的热爱 。 当然 , 从完工后的表现来看 , 也真的是又酷又有特点 。
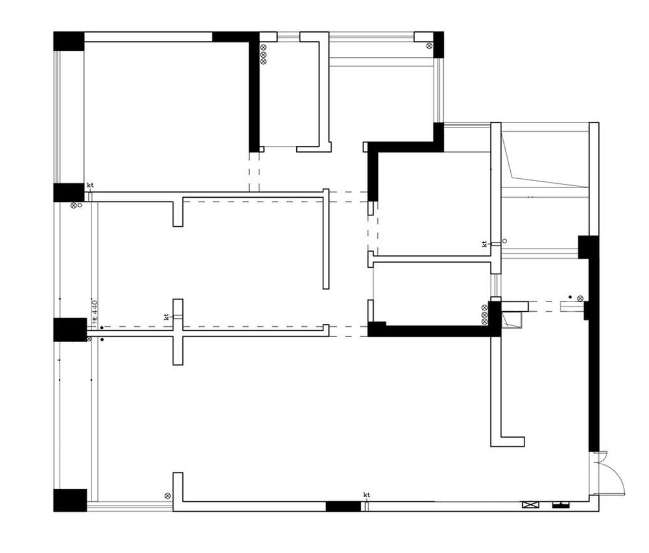
平面结构图
本案坐标株洲 , 建面156㎡ , 四室两厅两卫的格局 , 屋主是一位年轻的小伙 。 原户型结构相对来说 , 还算是挺工整的 , 唯一需要解决的 , 就是要重新定位空间的功能性 , 并且让空间面积分配更加合理 , 以符合该大户型应的空间表现 。 而屋主对新家的需求 , 就如上面说的那样 , 希望将自己的热爱作为主题 , 融入到空间当中 。
平面方案图
结合屋主的需求 , 以及现有的空间结构 , 布局改造如下 。
1、考虑到厨房外面挑空的区域可以现浇利用 , 将厨房移到内部 , 并将原厨房拆掉 , 让空间呈现出一体化的结构 。
2、将南次卧外面的阳台纳入室内 , 并给空间做缩小处理 , 为主卧延伸出一个衣帽间 , 并在过道增加一个主题区 。
3、北面最小的房间与主卫打通 , 采用三分离的结构来设计 , 并纳入到主卧当中 。
4、南阳台纳入客厅 , 进一步提高空间的使用面积 。
玄关
当空间采用一体化的结构来设计后 , 虽说入户并没有设计玄关隔断 , 但给侧面的墙体单独刷上灰色的艺术漆后 , 却也让空间在视觉上有了自然分隔 , 从而让层次更加立体 。 而当旁边的厨房拆掉之后 , 则通过功能柜的形式 , 解决了入户的收纳需求 。
餐厅
岩板中岛台与原木长桌组合的餐厅 , 硬朗中不失温润 , 再通过顶部暖色灯光的烘托 , 立马就提升了空间的温度 。 同时 , 超长的尺寸 , 也能满足多人使用需求 , 非常符合当下年轻人的生活方式 。 而餐厅侧面的两幅画 , 则是利用科比球衣来装裱的 , 既凸显出了个性 , 又十分符合空间主题 。
特别声明:本站内容均来自网友提供或互联网,仅供参考,请勿用于商业和其他非法用途。如果侵犯了您的权益请与我们联系,我们将在24小时内删除。
