
文章图片

文章图片

文章图片

文章图片

文章图片
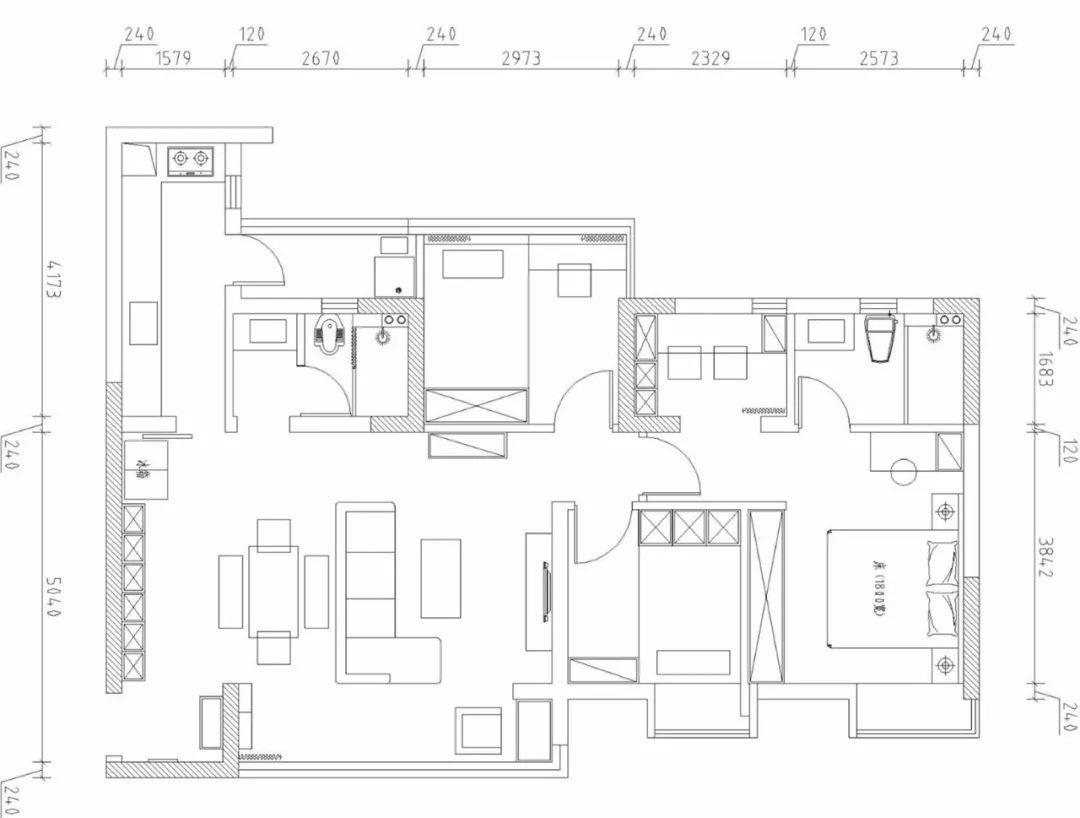
现在的一些家居装修等家宅事务一般都是女主人来打理了 , 在风格的选择上 , 大多数以流行的风格为主 , 喜欢网红北欧风的越来越多 , 这种小清新的气质和氛围非常能表达主人们热爱生活 , 提升生活情趣 。 今天给大家分享一套115㎡的高层小三居 , 卧室会稍微紧凑一些 , 整个硬装造价是9万块 , 这种ins的北欧风 , 小主您满意吗?
作为高层的房子 ,空间都会稍显紧凑一些 , 不过这个户型起居厅等公共区域还是很宽敞的 , 主要还是卧室空间比较小 , 不过还是很适合一家有两个孩子来居住的 。
入户玄关是个开间 , 直接带着餐客厅 , 新建一个墙体打造成拐角视觉 , 这样有了独立的玄关区域 , 挂上一面穿衣镜 , 摆上一张换鞋凳 , 侧面打造了一整排的鞋柜 , 储存一家四口四季的鞋子都没有问题 。
餐厅是现在很流行的餐桌椅了 , 比较有北欧范儿 , 网上晒的样板间大部分都是这种餐桌椅 , 木制的材质 , 比较ins的色调 , 看着就特别有食欲!
餐客厅是一体设计 , 地面铺贴浅色系的地板 , 墙面都刷成淡淡的蓝色调 , 餐客厅之间没有做隔断 , 空间看着宽敞许多 。
浅蓝色的L型布艺沙发搭配木色系的家具和地板 , 整体看上去有一种小清新的自然 , 这样的四口之家充满活力 。
三个卧室的空间都比较有限 , 主卧稍微宽敞一些 , 还带着一个独立的卫生间 , 床尾的空间打造一整排的到顶衣柜 , 满足衣物的收纳 。
两个小卧室都是榻榻米的设计 , 床底下带抽屉 , 可以收纳不少物品 , 也有独立的书桌和柜子 , 空间小 , 榻榻米却能将空间利用到极致 。
这个小卧室采用淡黄色调 , 有种小雏菊的小清新 , 非常适合学龄的儿童 , 学习和生活都能带来轻松和愉悦的氛围 。
厨房是原木风格的整体橱柜设计 , 非常有质感 , 搭配灰色的瓷砖也特别整洁时尚 , 耐脏 , 而且颜值不俗 , 在现在的很多年轻家庭 , 这样的厨房能为美食加分不少 。
【115㎡高层小三居,9万打造成ins北欧风,这模样小主可满意?】卫生间没有安装独立的淋浴房 , 相对来说 , 如果空间小的话 , 装玻璃淋浴房还是比较占用空间的 , 而且毕竟是经过水渍的浸泡 , 下面的轨道都会受到影响 , 在这边还是比较推荐用挡水条+浴帘的格局 , 能经常更换浴帘的款式和花色 , 变换风格 , 让浴室也更加有氛围!小主 , 这风格您满意吗?
特别声明:本站内容均来自网友提供或互联网,仅供参考,请勿用于商业和其他非法用途。如果侵犯了您的权益请与我们联系,我们将在24小时内删除。
