北京屋主精致的生活:空间隔而不断,氛围安静有情调,真让人羡慕

文章图片

文章图片

文章图片

文章图片

文章图片

文章图片

文章图片

精致的生活 , 相信每个人都向往 , 让生活充满情调 , 让归家更有仪式感 。 可真正能做到精致生活的 , 却并不多见 。 尤其是在生活节奏如此快的当下 , 外界的干扰 , 以及内心的焦虑 , 真的很难让人静下心来享受生活 。
本案屋主也是如此 , 不过通过对家的改造 , 却也让他的内心得到了平静 。 虽说新房面积不大 , 但巧妙的空间布局 , 以及安静且有情调的氛围营造 , 让整个空间都充满了精致 , 真的太让人羡慕了 。
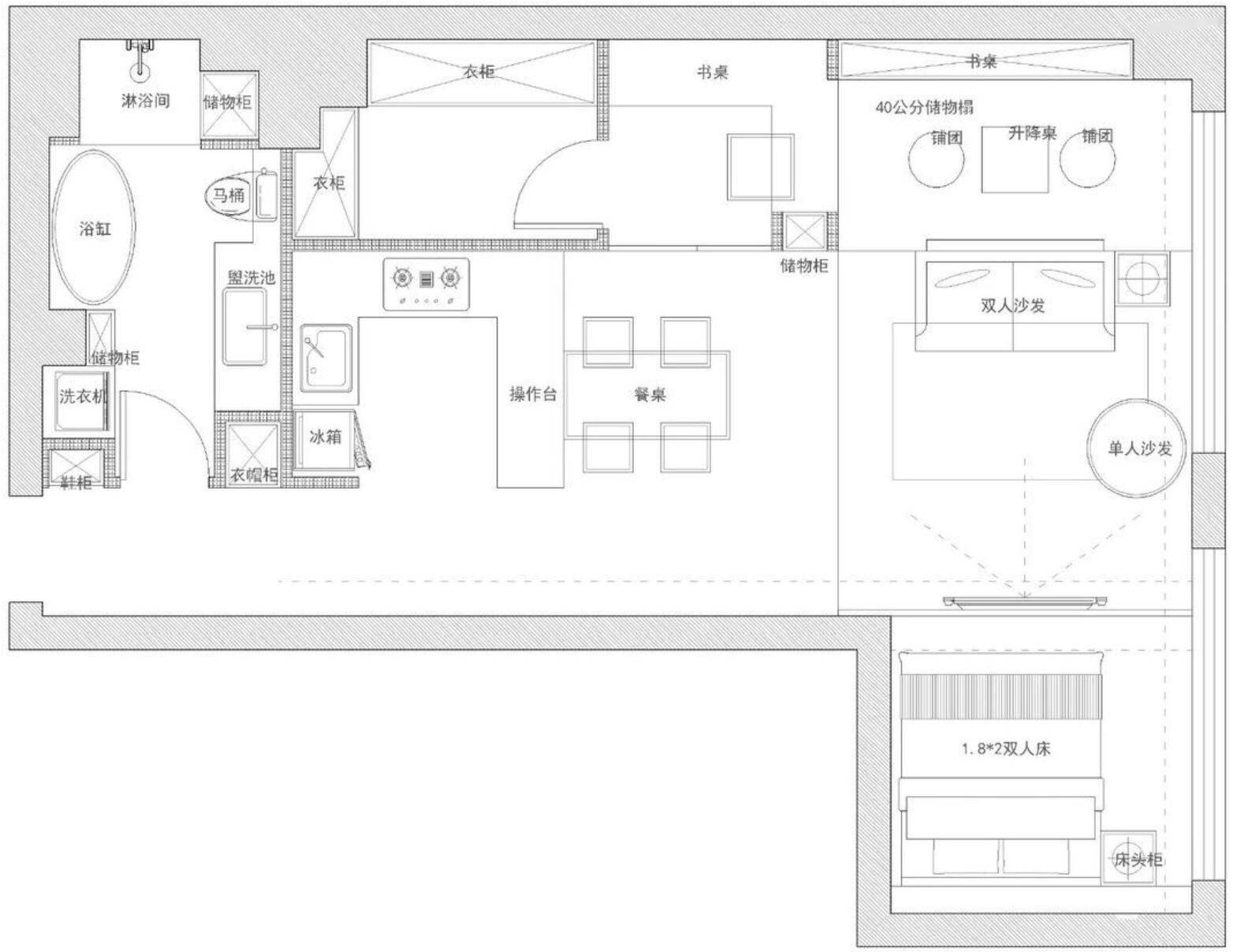
平面户型图
本案坐标北京 , 面积80㎡ , 屋主目前一个人独居 。 对于新家的期待 , 就像上面说的那样 , 希望通过“家” , 能让自己回归平静 , 找回对生活的热爱 。
而从平面方案上来看 , 整体是以四室两厅的格局来规划的 。 虽说每块空间的面积都很有限 , 但功能性却更加齐全了 。 比如独立的衣帽间、书房、休闲区等功能 , 就十分符合当下年轻人的生活需求 。 具体通过下面的实景 , 再来一步步分析 。
玄关【北京屋主精致的生活:空间隔而不断,氛围安静有情调,真让人羡慕】
从进门玄关和餐厨区的设计来看 , 整体是以经典的黑白调来定位的 。 相较于其它色彩 , 黑白调不仅更加的神秘、高级 , 视觉上也更加立体有层次了 。 尤其是玄关区一面黑色墙体设计 , 更是为入户带来了一丝宁静、沉稳的气息 。
厨房采用开放式设计 , 虽说油烟问题会始终存在 , 但对于独居的屋主来说 , 影响其实也并不大 。 况且 , 在空间面积有限的情况下 , 这样处理还可以让空间显得更加通透 。
餐厅
餐桌与橱柜操作台相连 , 在方便一些简餐制作的同时 , 也满足了多人聚餐的空间需求 。 比如烤个面包、榨杯果汁、冲杯咖啡什么的 , 在餐厅里就能操作了 。 当然 , 该橱柜也为餐厅分担了一些收纳需求 。
餐厅侧面 , 则是一间后规划的书房 , 灰色的玻璃移门选择 , 既让空间做到了开合自如;朦胧般的视觉感 , 也让空间多了一点延伸性 。 餐厅设计十分简单 , 灰色的桌布 , 素雅的花艺 , 以及黑金色的小吊灯 , 不仅提高了空间的温度 , 又彰显出了惬意 。
餐厅另一面墙直接留白 , 并安装上一幅黑白人物画 , 简约干净 , 且在视觉上又做到了平衡 , 从而让空间不再那么单调 。 由于客厅是以多功能性定位的 , 所以配置一台移动电视 , 既不会占用太多的空间 , 也在使用时做到了灵活、方便 。
特别声明:本站内容均来自网友提供或互联网,仅供参考,请勿用于商业和其他非法用途。如果侵犯了您的权益请与我们联系,我们将在24小时内删除。
