
文章图片

文章图片

文章图片

文章图片

文章图片

文章图片

文章图片

文章图片

文章图片

文章图片

业主是一对非常忙碌的夫妻 , 对设计师也是给予了充分的信任 , 从开始改造到收房基本都是通过电话沟通和监工 , 当然设计师也没有让业主失望 , 为业主打造了一个充满惊喜感和现代的时尚三居室 。
忙碌的业主夫妻 , 装修全程只靠电话监工!打开家门还以为走错了
房屋户型:两室
房屋面积:138平方米
装修预算:40万
设计师:李文伟
主要建材:大理石材、烤漆玻璃、天然木皮、进口耐磨地板、特殊磁漆
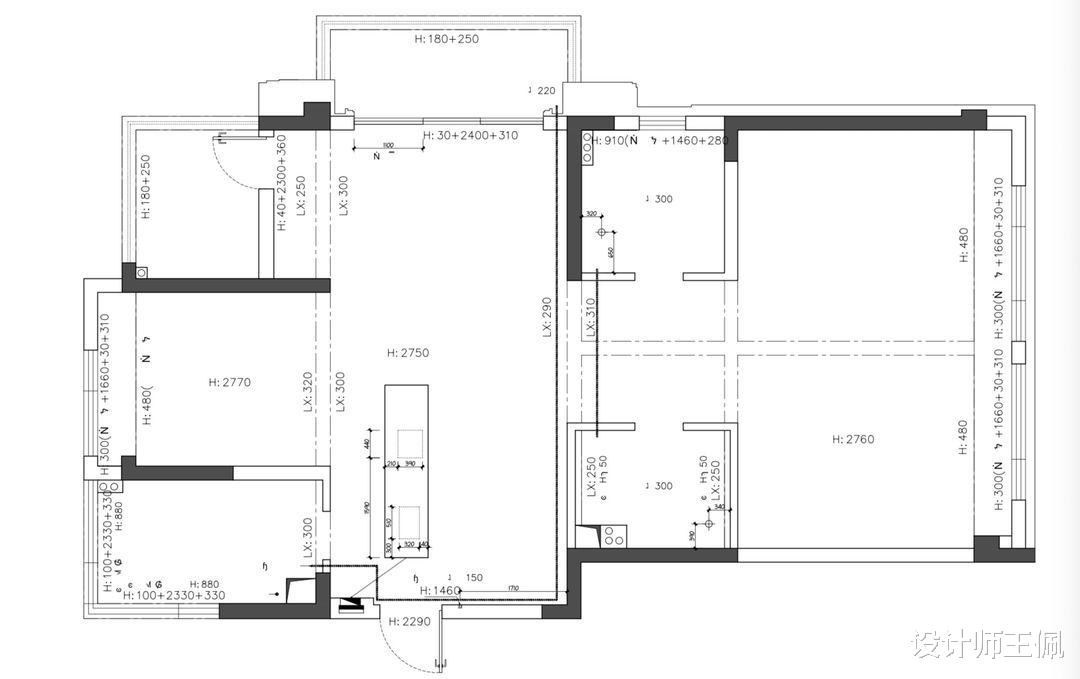
【户型图】
业主不喜欢家里有过多的色彩和装饰 , 更倾心于简约的风格 , 而且希望能够足够的休闲区 , 让夫妻两个在家中的时候 , 可以完全踏实的享受闲暇时光 。
改造后的整个空间布局更加清晰 , 考虑到只有业主两个人居住 , 所以没有保留较多的卧室 , 而是留出更多的空间给主要的功能区和休闲区 。 同时在每一个空间都增加了大容量的收纳空间 , 让储物变得更加简单和方便 。
【客厅】
设计重点:隐藏灯带充满设计感
客厅比较大胆地设计 , 就是光源 , 设计师拆除了之前的所有光源 , 用隐藏灯带代替 , 不仅满足了客厅对采光的需求 , 又大大丰富了空间的层次美感 。
深色布艺转角沙发足以满足业主的使用需求 , 搭配浅灰色背景墙 , 更有一种低调的内敛感 , 一旁造型别致的台灯不仅丰富了客厅的光源 , 也让空间更加的百变和灵活 。
电视背景墙是保留的原始墙面 , 电视下方增设了电视柜一直延伸到转角的餐厅 , 巧妙的和餐厅的卡座连接在一起 , 不仅让客厅和餐厅保持了紧密的沟通和互动 , 又让空间更加的时尚和灵动 。
特别声明:本站内容均来自网友提供或互联网,仅供参考,请勿用于商业和其他非法用途。如果侵犯了您的权益请与我们联系,我们将在24小时内删除。
