49㎡的新房,他却要拆掉一间卧室,完工后,反而越住越舒适

文章图片

文章图片

文章图片

文章图片

文章图片

文章图片

文章图片

说到小户型设计 , 相信很多人第一考虑的 , 都是如何利用好面积 , 以便让空间满足基本的居住需求 。 毕竟在有限的空间中 , 任何一块可利用的空间 , 都是不能轻易放弃的 。
不过下面这套案例中的屋主在装修新房时 , 却恰恰要以逆向思维重组空间 。 甚至在原户型有两间卧室的情况下 , 还坚持要拆掉一间卧室 。 虽说做法有些难以让人理解 , 但从完工后的居住体验来看 , 却也真的是越住越舒适 。
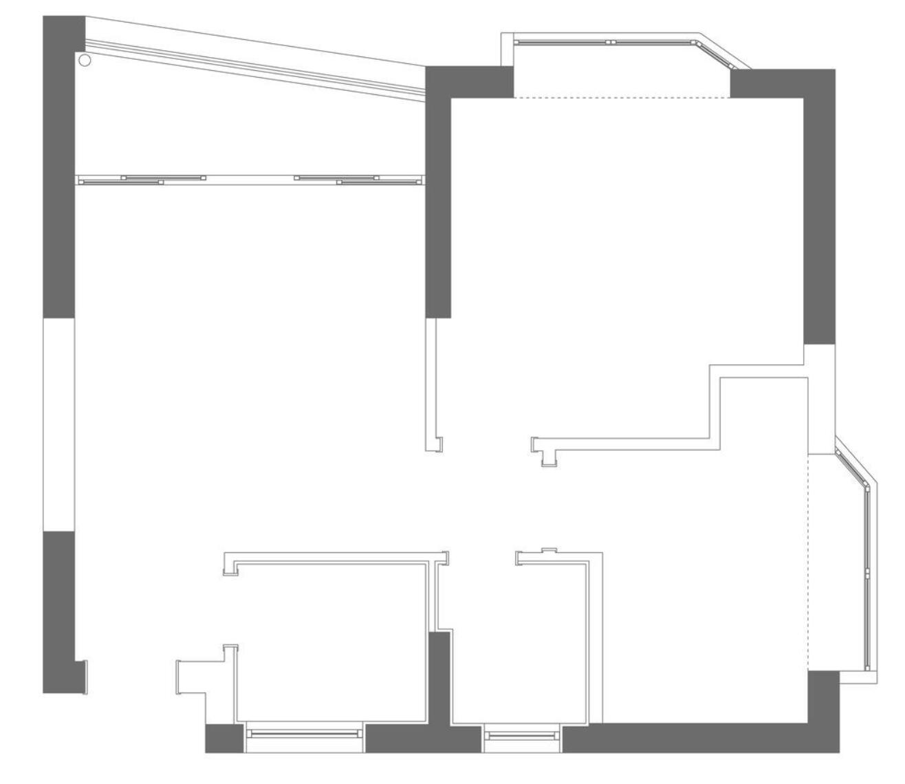
平面结构图
新房坐标深圳 , 面积49㎡ , 标准的两室一厅一卫格局 。 从原户型规划来看 , 虽说空间面积小了一点 , 但也算是比较工整 , 且完全可以满足一家三口的居住需求 。 不过由于屋主是一个人居住 , 所以为了让空间更加符合自己的生活方式 , 就在空间改造这块 , 放弃了一间独立的卧室 , 并对空间功能做了重组 。
平面方案图
结合屋主的需求 , 整体分别是以公共区、私密区两大区域来规划的 , 具体改造如下 。
1、厨房采用开放式设计 , 使其与客厅完全通透 , 并解决日常用餐需求 。
2、取消次卧 , 并以套间的方式设计主卧 , 使其融合休息、办公、卫生间等功能 。
4、扩大卫生间的使用面积 , 并配置淋浴间、浴缸等功能 , 以提升生活的品质 。
玄关
当厨房改成开放式结构后 , 门厅的空间感立马就得到了释放 。 地面采用工字砖并延铺进厨房 , 不仅与木地板之间有了一个平缓的过渡 , 还为空间点缀出了一抹律动的气息 。 而侧面的鞋柜 , 则采用一体化的方式 , 将收纳与换鞋凳做了一个整合 , 在提升美感的同时 , 也带来了更多的功能性 。
厨房
当厨房的墙体拆掉之后 , 则向客厅做了扩大处理 。 这样既让内部实现了U形的橱柜布局 , 也延伸出了一个隔断吧台 , 从而解决了日常的用餐需求 。 同时 , 交互式的布局手法 , 也让厨房与客厅做到了完全通透 , 避开了小户型普遍存在的拥挤性 。
吧台与橱柜做一体化设计 , 既起到了空间互补的作用 , 也暗藏了很多实用性的功能 。 比如电动升降插座设计 , 就在方便小电器使用的同时 , 让台面做到了整洁、干净;再比如无线蓝牙充电器配置 , 就在阅读的同时 , 方便了手机充电 。
特别声明:本站内容均来自网友提供或互联网,仅供参考,请勿用于商业和其他非法用途。如果侵犯了您的权益请与我们联系,我们将在24小时内删除。
