
文章图片

文章图片

文章图片

文章图片

文章图片

文章图片

文章图片

文章图片
爆改24平方米独居空间 , 用美式风情勾勒 , 打造一人居
此次改造可以说是设计师从业多年来遇到的比较大的一次挑战 , 全屋不足30个平方 , 作为业主独居的空间 , 面积非常的局促狭小 , 业主又是一个对生活品质和质量有着高要求的人 , 如何满足业主的需求和平衡家居的布局成了改造过程中最大的难题 。
房屋户型:一室
房屋面积:24平方米
装修预算:20万
设计师:李文伟
主要建材:铁件、石材、人造石、系统柜、木作、油漆、玻璃、仿清水模漆
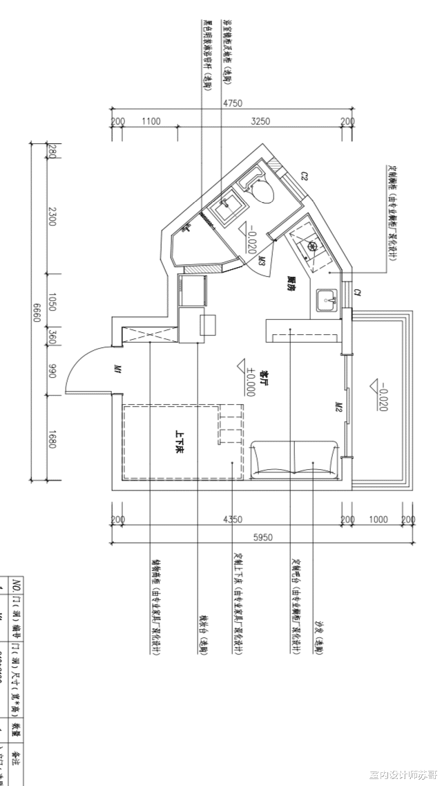
【户型图】
全屋不仅面积狭小 , 户型结构也存在比较大的弊端 , 主要的厨房和卫生间面积非常小 , 功能区也极其不完善 , 业主日常使用操作都非常的不便 。 全屋采光也受到较大的影响通风质量也不好 , 对业主来说基本的生活需求都得不到保证 。
改造后的空间根据房屋的走向全新进行了布局 , 重新优化后的空间动线更加的合理自然 。 利用软装上的搭配弱化户型上存在的弊端 , 释放出空间的主要优势 。
【玄关】
设计重点:功能强大的一一体式收纳区
原始空间中并没有独立的玄关 , 业主回到家之后衣服鞋子都只能堆在外面 , 造成空间上的不美观 , 改造之后玄关柜成了全屋的主要收纳区 , 独立的柜体集收纳储物整理于一体 , 既能节省空间 , 又能实现业主对日常整理的需求 。
【客厅】
设计重点:定制家具解决小户型的布局难题
考虑全屋居住面积的狭小 , 业主又希望能够有一个独立的活动区和休息区 , 设计师采用了定制家具 , 上下床是布局既能保证足够的活动空间又能满足独立睡眠的需求 。
高低床一侧是业主的主要活动空间 , 小巧的沙发满足业主日常休息需求 , 壁柜式电视墙轻薄又灵动 , 既能满足空间的隔断 , 又方便日常业主观影 。
【爆改24平方米独居空间,用美式风情勾勒,打造一人居】从玄关看向客厅整个空间一览无余 , 没有视觉上的阻碍更显空间的开阔和明亮 。 客厅保留的大窗保证了全屋的采光 , 同时也让空气流通更加的自然
客厅和阳台之间采用了玻璃隔断 , 既能保证空间的私密和安全 , 又不会影响到自然气息的流动 。
特别声明:本站内容均来自网友提供或互联网,仅供参考,请勿用于商业和其他非法用途。如果侵犯了您的权益请与我们联系,我们将在24小时内删除。
