来看看这套68㎡轻奢风,豪宅都被秒成渣

文章图片

文章图片
【来看看这套68㎡轻奢风,豪宅都被秒成渣】

文章图片

文章图片

文章图片

文章图片

文章图片

文章图片

文章图片

文章图片

文章图片

文章图片
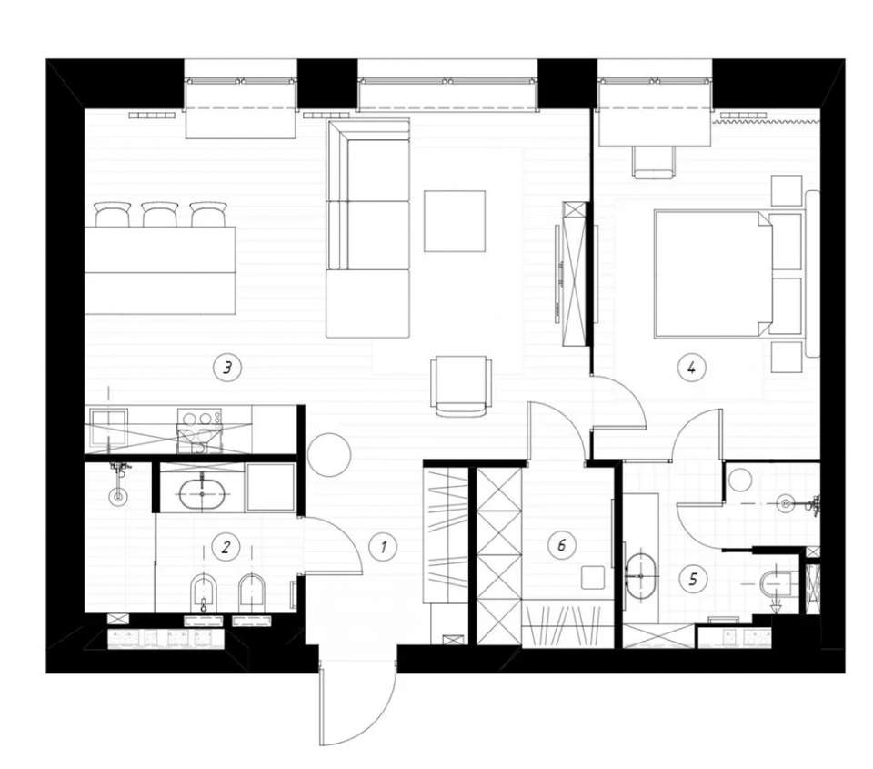
图垄者设计:我遇到过许多小房子类型 。 为了展示大空间 , 我选择了现代简约风格 。 事实上 , 我已经习惯了单调简单的风格 , 而轻薄奢华的风格也是一个不错的选择 。 小编今天推荐的案例只有66平方米 。 它既轻又奢侈 。 建成后 , 它看起来像一栋100多平方米的房子 , 豪华的房子已经变成了废渣!
01、玄关
只有5.2㎡的 门廊 , 右边是一个不屈不挠的鞋柜 。 换鞋凳上方可悬挂衣袋 , 下方可放置拖鞋 。
右边是一面落地镜子 。 出门的一系列准备工作可以在门廊里完成 。
事实上 , 门口的软凳子承担着换鞋的部分功能 。 你可以坐在这里换鞋 , 也可以在门口换鞋 。
02、客餐厅
客厅、餐厅和厨房做敞开式的 , 整个空间宽敞、透明、明亮 。 两扇大窗户 , 如自然采光和通风 , 可以说是最好的装饰 。
深绿色电视背景墙呼应整个空间 , 并具有存储功能 。
厨房桌子的一边是厨房控制台 , 另一边是夫妇俩吃饭的地方 。
使用一个窗口和一个浮动窗口 , 这是一个完美的阅读角落 。
03、主卧
我不想把照片挂在床头 。 如果白色的大墙太单调 , 使用彩色墙、拼接彩色墙或像图中那样的墙板也是一个不错的选择 。主卧的一面墙有两个大玻璃杯 。 白天的采光非常好 , 晚上可以拉起窗帘来遮挡隐私 。
特别声明:本站内容均来自网友提供或互联网,仅供参考,请勿用于商业和其他非法用途。如果侵犯了您的权益请与我们联系,我们将在24小时内删除。
