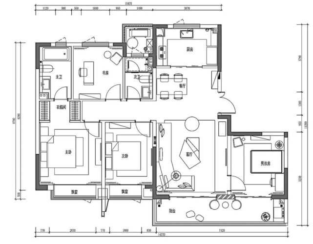
193平现代风四居室,一眼看去这些设计让人着迷

文章图片

文章图片

文章图片

无比惬意的193平米的四居室 , 装修时选择了现代风格 , 让人每天下班只想早回家 。 那些让人着迷的设计相信会俘获很多人的心吧 , 这套装修案例应该就是理想之家了 。
客厅是最主要的公共活动空间 , 不管是否做人工吊顶 , 都必须确保空间的高度性 。 另外 , 还要确保客厅从任何角度看都有美感 。
客厅
卧室怎么装修?很多时候卧室不止是睡觉的地方 , 它还要同时承担工作、储物、吃吃喝喝等功能 , 想想你每天要在卧室里虚度大把时光 , 令人感觉舒服的卧室就尤为重要了 。 卧室装修一定要符合自己的生活方式 , 在设计方案时要提前考虑到位 , 避免后期出现装修遗憾 。
卧室
客卧
【193平现代风四居室,一眼看去这些设计让人着迷】
次卧
书房一般空间较小 , 放置一张书桌后剩余面积很少 , 可以设计两个书架 , 最大的靠墙放地上 , 最小的挂在墙上 。 既装饰了书房又采用分散法最大限度地起到书架的收纳作用 。
书房
玄关的采光宜明不宜暗 , 通常玄关没有窗户 , 因此极少会有自然采光 , 必须得通过安装灯具来进行照明 , 装修时必须要考虑电器插座的设置 。 玄关的灯具简单就好 , 彩灯会影响人的视线 , 美观但不实用 , 不推荐使用 。
玄关
特别声明:本站内容均来自网友提供或互联网,仅供参考,请勿用于商业和其他非法用途。如果侵犯了您的权益请与我们联系,我们将在24小时内删除。
