
文章图片

文章图片

文章图片

文章图片

文章图片

文章图片

文章图片

文章图片

文章图片

▲ 建筑面积218平 , 总造价120万 , 项目坐标:成都 , 完工时间:2022年年初 , 本案男主是建筑师 , 女主全职照顾爱运动的两个儿子 , 打造一个亲子生活场域 , 于空间中有意识的去塑造孩子独立成长的环境 , 每处空间的设计里都有着明确的生活场景
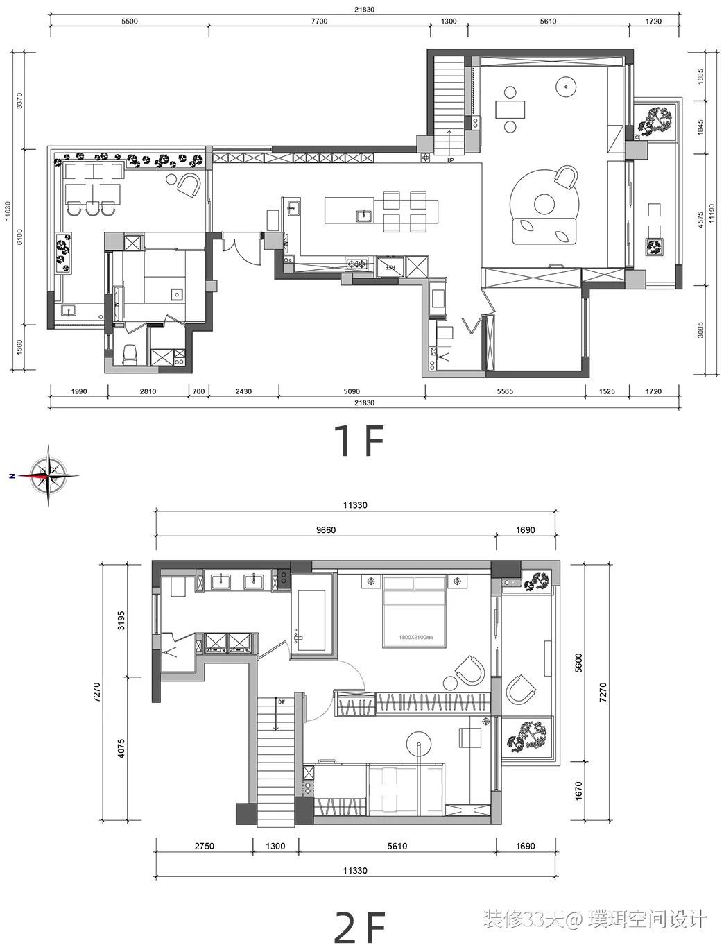
▲ 平面结构图
▲ 平面布置图
▲ 玄关 , 洞洞板和小朋友喜欢的乐高元素结合在一起 , 小朋友的滑雪装备也有专门摆放的位置
▲ 整个空间摒弃传统以客厅为中心的生活场域 , 加高地台 , 提供多中心生活场景的体验
▲ 活动区的另一侧为退至一旁的沙发 , 电动投影幕布放下后 , 一家人可围坐在这里看动画片玩 switch, 木饰面背景中间的蓝色半圆窗洞是次卧的“第二入口”
▲ 原本的下沉区域保留部分 , 做成可升降的小桌子 , 一键让空间和孩子们在动静间切换
▲ 玩乐高做手工的绝佳角落 , 还有可随意作画的白板墙 , 在这里可以沉静下来 , 去学习创造
▲ 整面墙的书架带出阅读氛围 , 屋主平时可以带着小朋友们在这里读书学习 , 增加亲子之间的相处与陪伴
▲ 客餐厅互通 , 兼顾照看小朋友
▲ 开放式的餐厨区是以成人为主的中心 , 中西厨结合 , 方便做美食的同时增加一家人的互动交流
▲ 茶室 , 一间半开放的茶室静静地与户外露台连接 , 惬意的午后 , 阳光作伴 , 静静享受当下的美好
▲ 茶室一角
▲ 次卧 , 衣柜改造成了“柜体式岩洞” , 与外面的活动区串联 , 折叠床收起可做乐器室使用 , 放下则是临时客房或是未来大儿子的卧室
▲ 二层的儿童房与一楼的活动区通过滑滑竿串联 , 洞口也有厚重的木板门做保护 , 不使用时会及时关上
▲ 儿童房安静的学习区 , 空间动静分离
特别声明:本站内容均来自网友提供或互联网,仅供参考,请勿用于商业和其他非法用途。如果侵犯了您的权益请与我们联系,我们将在24小时内删除。
