重装180平复式房屋,喜迎二胎,开始一家四口的小日子

文章图片

文章图片

文章图片

文章图片

文章图片

文章图片

文章图片

文章图片

文章图片

文章图片

文章图片

文章图片

文章图片

文章图片

文章图片

文章图片
夫妻二人结婚之后 , 丈夫就一直在外面忙着自己的事业发展 , 而妻子则在家里照顾孩子和丈夫的饮食起居 , 随着生活变好家里也买了180平的复式房 。 家里本身的装修比较简约一些 , 但随着二胎的降临 , 也让他们想要给房子重新做装修 , 让家充满爱与温馨 。
重装180平复式房屋 , 喜迎二胎 , 开始一家四口的小日子
房屋户型:复式
房屋面积:180平方米
装修预算:50万
设计师:李文伟
主要建材:铁件、石材、人造石、系统柜、木作、油漆、玻璃、仿清水模漆
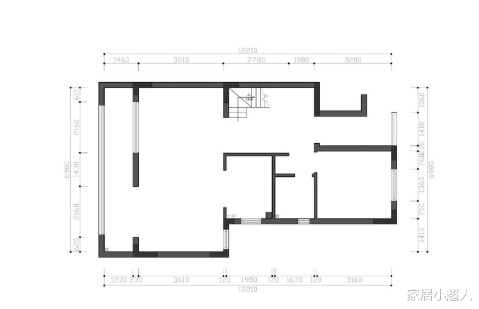
【户型图】
为方便日后父母过来一起居住 , 在装修的时候给房间做了一个预留的设计 , 可以满足日后家里人多居住的使用 。
而且整个房子在装修的时候给每个楼层做了不同的设计 , 可以让区域更好的划分开 , 也让实用性和功能性变得更好 。
特别声明:本站内容均来自网友提供或互联网,仅供参考,请勿用于商业和其他非法用途。如果侵犯了您的权益请与我们联系,我们将在24小时内删除。
