
文章图片

文章图片

文章图片

文章图片

文章图片

文章图片

文章图片

文章图片

文章图片

文章图片

文章图片

文章图片

文章图片

文章图片

文章图片

文章图片

今天小编分享的案例是一对95后情侣的婚房 , 该房屋有着和女屋主差不多的年纪 , 伴随着她的成长 。
设计过程中设计师更在意空间的真实感 , 因为这于屋主是有共鸣的 , 是熟悉的 , 安心的;它不是单一的 , 是立体的 , 丰富的 , 是视觉、触觉、精神、情感和记忆的共鸣 , 这种共鸣使我们觉得置身其中 , 一切都是这么自然而然的存在和发生 。
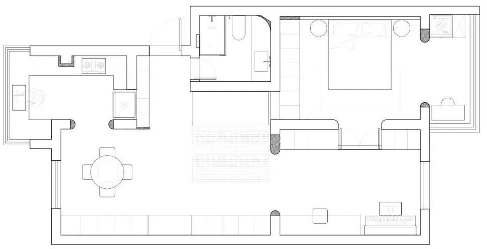
▲ 原始户型图
存在缺陷:
1. 原户型是二室一厅的老小区 。
2. 厨房面积偏小 , 操作区台面不够 。
3. 空间整体的收纳储物不太足 。
▲ 平面布局图
设计策略:
1. 入户拱形造型 , 壁炉柜+整面收纳储物柜满足了客餐厅和生活的收纳储物功能 , 整面柜体设计不仅实现生活实用功能 , 也增强入户的美感 。
特别声明:本站内容均来自网友提供或互联网,仅供参考,请勿用于商业和其他非法用途。如果侵犯了您的权益请与我们联系,我们将在24小时内删除。
