
文章图片

文章图片

文章图片

文章图片

文章图片

文章图片

文章图片

文章图片

文章图片

文章图片

文章图片

文章图片

这套房子的改造过程其实比较简单 , 因为在此次改造之前不久已经进行一次系统的装修 , 但是因为比较的不环保 , 业主不放心孩子在这里居住 , 所以希望再一次进行装修来打造环保自然的空间气息 。 因为业主对此次改造的要求比较高 , 很多设计公司的方案都无法打动业主 , 导致改造一直没有提上日程 , 直到遇到了我们这次改造才开始真正的拉开序幕 。
二次升级打造完美家居 , 让生活也变得更理想 , 让家人更满意
房屋户型:两室
房屋面积:98平方米
【二次升级打造完美家居,让生活也变得更理想,让家人更满意】装修预算:20万
设计师:李文伟
主要建材:铁件、石材、人造石、系统柜、木作、油漆、玻璃、仿清水模漆
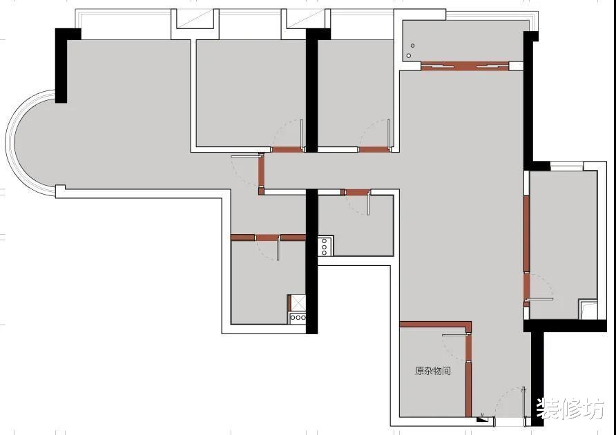
【户型图】
一:增加之前缺少的开放式办公区 , 同时调整储物空间的位置满足收纳需求 。
二:玄关区域进行重新的布局调整 , 把储存鞋子的区域进行位置上的移动 , 保障了入户口和室内空间的独立与私密 。
三:因为男主人有收藏的喜好 , 所以设计师专门选择了一处区域展示业主的藏品也提供给空间无限的魅力 。
【玄关】
设计重点:几何拼接瓷砖引人入胜
玄关区第一眼看到的就是几何造型的瓷砖铺设的地面 , 越走到室内几何图案越少 , 给人一种引领的视觉美感 , 同时在玄关左侧设计了轻薄的储物柜 , 既可以提供储物区 , 也能保证玄关柜和客厅之间的巧妙衔接 。
特别声明:本站内容均来自网友提供或互联网,仅供参考,请勿用于商业和其他非法用途。如果侵犯了您的权益请与我们联系,我们将在24小时内删除。
