173平台式现代三居室,高效整合空间,客厅开间多出一个功能间

文章图片

文章图片

文章图片

文章图片

文章图片
【173平台式现代三居室,高效整合空间,客厅开间多出一个功能间】

文章图片

文章图片

文章图片

文章图片

文章图片

文章图片

文章图片

文章图片

文章图片

本房的男主是一位修车工 , 女主是位白领 , 两个人在一起打拼10年用所有的积蓄买下这173平的房子 。 他们希望家可以舒适 , 但要把每个区域都利用到 。 希望客厅有大的活动空间 , 最好可以相互的转换 。 我们将空间面积合理的利用 , 做到让各个空间和区域都发挥到极致 。
173平台式现代三居室 , 高效整合空间 , 客厅开间多出一个功能间
房屋户型:三室
房屋面积:173平方米
装修预算:45万
所在城市:南京
主要建材:铁件、石材、人造石、系统柜、木作、油漆、玻璃、仿清水模漆
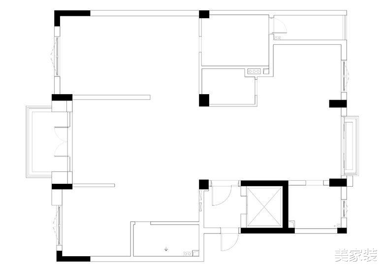
【户型图】
基础户型
房面积是173平 , 有5个人来住 , 有三个卧室和三个卫生间 , 一个做饭区域 。 整体分布还算可以 。 但整个空间过于凌乱 , 没有好的储纳空间 。
改造重点
1、把每个区域都设置隐藏的橱柜 , 将凌乱的物品收纳起来 。
特别声明:本站内容均来自网友提供或互联网,仅供参考,请勿用于商业和其他非法用途。如果侵犯了您的权益请与我们联系,我们将在24小时内删除。
