杭州屋主家的高级场面:墙面不用乳胶漆,色彩高度统一,超有质感

文章图片

文章图片

文章图片

文章图片

文章图片

文章图片

文章图片

文章图片

文章图片

文章图片

文章图片

都说每一个家都应该是温暖的 , 但在我看来 , 家更多体现的 , 还是居住者的性格及审美 。 因此 , 不单单只有温暖 , 有时清冷的基调更能彰显出居住者的心境 , 以及对待生活的态度 。
比如下面案例中的这位屋主 , 由于从事建筑设计行业 , 所以对水泥元素有着格外的偏爱 。 因此 , 在给新家设计时 , 墙面就放弃了常规的乳胶漆材质 , 并以统一的色彩来定位 。 虽说从完工后的效果来看 , 略显有一点清冷 , 但也在粗犷的质感中 , 透着一抹高级感 。
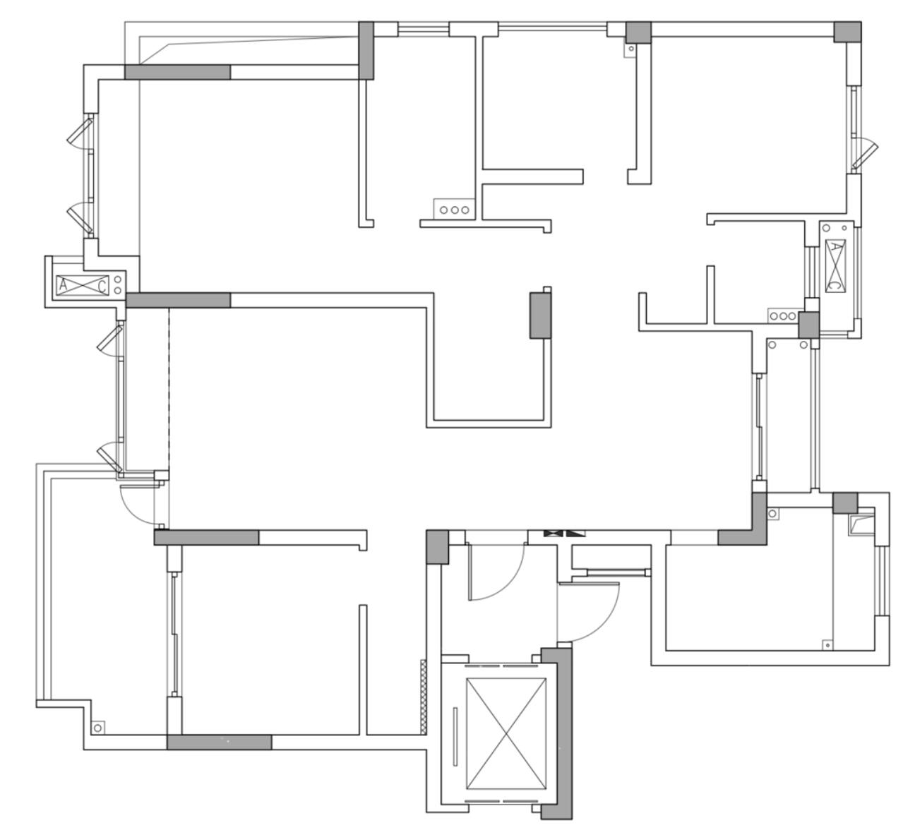
原始结构图
新房坐标杭州 , 面积125㎡ , 四室两厅的格局 , 屋主一家三口 。 如上面所说 , 相较于温暖的空间氛围 , 夫妇俩更倾向冷峻、沉稳、且有质感的基调 , 以便在回到家的那一刻 , 精神上能得到满足 。
而从原户型来看 , 虽说空间动线划分也比较细致 , 但也由于玄关区对面的墙体存在 , 导致空间的利用率以及通透性 , 受到了很大的影响 。 所以墙体结构改造这块 , 也是从玄关区这里开始展开的 。
平面方案图
空间布局如下
1、利用电梯间的面积设计鞋柜 , 释放出室内的空间 。
2、拆掉进门对面的墙体 , 让客餐厅更加宽敞、通透 。
3、次卫干区向过道延伸 , 并以隔断的方式与餐厅实现贯通 。
4、书房采用移门隔断 , 让空间实现自由开合 。
5、次卧拆掉无意义的隔墙 , 提高空间利用率 。
玄关
当进门对面的墙体拆掉之后 , 虽说弱化了玄关区的存在 , 但利用鞋柜侧面的空间 , 所设计的小端景台 , 却也起到了提升入户仪式感的作用 。 而灰色的水泥漆运用 , 也为空间奠定了冷峻、沉稳的基调 , 从而让屋主一进门 , 就能感受到安宁、放松的居家环境 。
特别声明:本站内容均来自网友提供或互联网,仅供参考,请勿用于商业和其他非法用途。如果侵犯了您的权益请与我们联系,我们将在24小时内删除。
