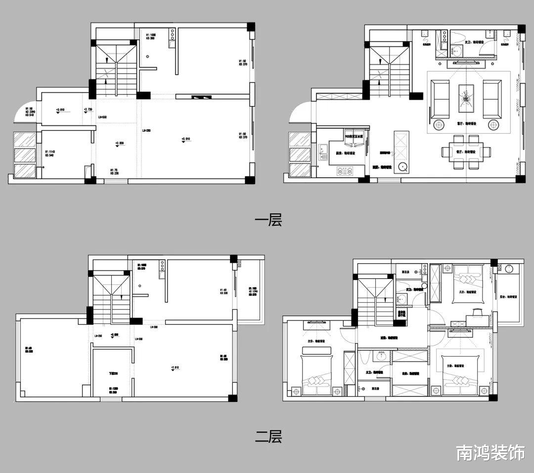
143㎡现代风排屋,灰色外壳下的精致与舒适

文章图片

文章图片

文章图片

文章图片

文章图片

文章图片

文章图片

文章图片

文章图片
项目信息
/
地址:溪涧堂
城市:中国 杭州
户型:叠排排屋
面积:143㎡
风格:现代风格
设计施工:浙江南鸿装饰
找一个好朋友 , 找一个好天气 ,
找一棵结满果子的树 , 摇下几颗甜美的果子 。
等待微风轻轻吹拂 , 观看白云静静流散 。
/
本案为三口之家 , 设计师运用简洁的线条和纯粹的色彩 , 让空间拥有了很强的包容性 。 居室以中性灰为基调 , 同色系的软硬装材质对空间进行调性统一 , 打造沉稳大气的感受 。 金属元素的点缀提亮空间 , 并平衡冷暖 , 让其更显精致 。
#户型设计
玄关
Hallway
玄关做适量的储物设计 , 底部留空放常穿的鞋子并自然融入换鞋区 , 打造出入户的便捷体验 。
客厅
Living Room
客餐厅联系紧密 , 风格统一 , 不过在吊顶上还是做了巧妙的区分 。
客厅空间总体克制沉稳 , 无任何花哨的色彩或软装布置 , 沙发、茶几线条简洁 , 传递着让人安心的气息 。 不同质感的灰于此相遇 , 在光的拥抱下呈现出了丰富的表情 , 展露着细腻的温暖 。
皮艺、大理石、铜饰面等材质搭配和谐 , 丰富视觉上的层次 。 通透的日照光线 , 让这个灰色的现代空间被晕染得更加柔和 。
餐厅
Dining Room
餐厅布置轻松而随意 , 餐桌四面留空所形成的环形动线让空间拥有了流畅的互动关系 。 背景墙悬挂三幅装饰画做简单装饰 , 金属边框与顶面呼应 , 共塑精致氛围 。
厨房
Kitchen
西厨岛台与餐厅相连 , 拉近彼此的关系 。 中西结合的厨房设计 , 在提高使用频率的同时 , 还可以加强家人间的日常互动 , 一举多得 。
中厨本身面积不算大 , 因此选择了浅色系厨柜、墙地砖来尽量地放大空间视感 , 整体显得明亮简洁 , 让烹饪美食的过程变得无比舒心 。
【143㎡现代风排屋,灰色外壳下的精致与舒适】
特别声明:本站内容均来自网友提供或互联网,仅供参考,请勿用于商业和其他非法用途。如果侵犯了您的权益请与我们联系,我们将在24小时内删除。
