90后夫妻买下138平米四房户型,装现代风格,入户就被惊艳到了

文章图片

文章图片

文章图片

文章图片

文章图片

文章图片
设计风格:现代风格
实际面积:138平米
空间格局:四房两厅格局
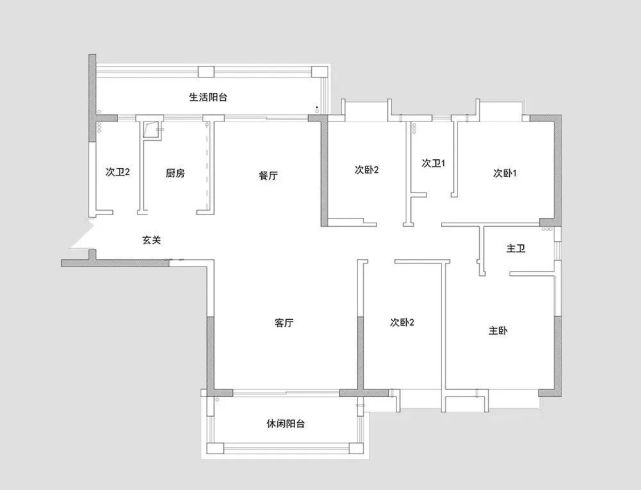
01户型图
原始结构图
房子是一套很常见的四房两厅结构的户型 , 南北通透 , 餐厅和客厅各有一个阳台非常地常见 , 餐厅的阳台很大 , 不过是一个狭长的空间 , 利用率不高;四个卧室中规中矩不大不小刚刚好 。
02平面布置图
平面布置图
业主一家四口居住 , 在卧室的局部上保留两个小孩房和一个主卧室 , 再做一个书房兼客房 , 平时两小孩在此写作业 , 父母来时可以住一下 , 客人来了也可以临时居住 , 十分地方便;餐厅放圆桌 , 很适合一家四口同时用餐 。
【90后夫妻买下138平米四房户型,装现代风格,入户就被惊艳到了】03玄关
玄关
玄关
玄关的右手边就是鞋柜 , 由于空间狭小 , 所以做不到一边摆放换鞋凳一边做鞋柜;这里采用了“收、拉”的方式 , 也就是用的时候拉出来 , 平时就收进去 。
04客厅
客厅
客厅
沙发背景一个荷花的壁纸造型 , 十分抢眼 , 能让人第一眼就注意到 , 两侧木饰面上墙做对称造型;电视墙是一块天然的大理石 , 很显精致也很有质感 , 大理石墙面还嵌入了隔板 , 用来放装饰物品;顶面采用石膏板吊顶里面暗藏灯带 , 外面有射灯 , 中间有吊灯 , 光源十分充足 。
05休闲阳台
休闲阳台
闲暇时光闲坐在此 , 躺在吊床上看书阅读 , 享受美好的周末 , 享受阳光的沐浴 , 独自过一个愉快的时光 。
06餐厅
餐厅
餐厅
餐厅一面墙脏粉色墙面挂两幅画 , 另一面墙做满酒柜 , 酒柜采用无拉手式的设计 , 里面装的磁碰让他不仅整体而且方便 , 还留有格子 , 来放装饰品 , 增加酒柜的可观感 。
07生活阳台
生活阳台
这个狭长的空间利用率不高 , 摆放一幅装饰画 , 来起到点睛之笔 。
08主卧室
主卧室
主卧室
我们从床头的视角去看 , 左手边是飘窗 , 放上一张定制飘窗垫可以躺也可以坐了;右手边则是一排嵌入式无拉手的衣柜 , 白色干净整洁 。 顶面设计和客厅一样只不过取消了吊灯 , 让其更宽敞 。
特别声明:本站内容均来自网友提供或互联网,仅供参考,请勿用于商业和其他非法用途。如果侵犯了您的权益请与我们联系,我们将在24小时内删除。
