
文章图片

文章图片

文章图片

文章图片

文章图片

文章图片

文章图片

文章图片

文章图片

文章图片
以往我们常说 , 小户型设计得好才见设计师的功底和居住者的自身魅力 。 事实也确实如此 , 特别是现在的一线城市 , 住宅压力始终存在 。 生存机会和生活空间 , 都给人前所未有的压力 。 正是在这种高压下 , 一些即使住着很小的家 , 依旧兴致盎然 , 努力生活的人 , 才往往像光一样 , 照亮周围 , 温暖世界 。
这也是小喜一直喜欢家居的原因 , 很多人觉得家不过是一个个空间 , 而无数人觉得家承载着生活和希望 。
今天 , 我们要分享的是上海一个36平小家 , 紧凑的日式风 , 却做到了功能齐全又人性化 , 看完不得不感叹设计师的厉害!
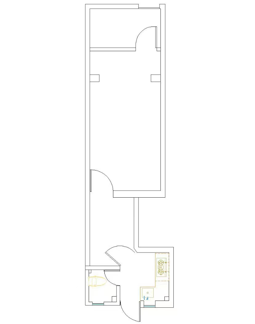
01户型图房子是一字形布局 , 又长又深 , 要考虑到实用性和采光 , 设计难度非常大 。 而且卫生间非常非常小 , 几乎转不过身 。 同时没有玄关 , 无法收纳 , 这两点 , 对日常生活都会造成不小的影响 。
改造前户型
屋主和设计师经过4个月的讨论和研究 , 终于将原户型进行了改造 , 看起来只是细节 , 却让小家有了质的改变和逆袭 。
改造后户型
最为明显的就是将厨房内移到原客餐厅的空间 , 利用入户右手边位置设计玄关柜 , 保证日常收纳 。 同时将卫生间内移 , 并做弧形隔断 , 让卫生间功能更为齐全 。 拆除阳台隔断墙做推拉门 , 增加休息区的采光 , 让小家不再黑洞洞 。
下面来看实现的成果~
02玄关因为房子就在一楼 , 独立入户 , 设计时屋主甚至把玄关外的楼梯空间也考虑进来 , 增加入户玄关的空间 。
楼梯外墙画着龙猫 , 可爱有趣 , 几步到家门口 , 又有绿植迎接 。 打开门屋内灯光澄明 , 温暖如春 。
站在入户门位置 , 可以看见设计师改造后的玄关和左侧的卫生间 , 远处还有隐约可见的大书柜 。
玄关空间并不小 , 收纳上做了顶天的整体柜 , 半镂空放换鞋凳和挂衣架 , 靠墙还做了小小的地台 , 增加收纳 。
特别声明:本站内容均来自网友提供或互联网,仅供参考,请勿用于商业和其他非法用途。如果侵犯了您的权益请与我们联系,我们将在24小时内删除。
