
文章图片

文章图片

文章图片

文章图片

文章图片

文章图片

文章图片

文章图片

文章图片

文章图片

文章图片

文章图片

这次给大家分享装修主题:这是我见过最极简装修 , 效果很耐看 , 阳台放浴缸泡澡 , 谁见过?
见到很多大大小小的家 , 也见过很豪华的装修 , 但是第一次见到屋主她家这套新房 , 真的很羡慕 。 说实在话的 , 这是我有史以来见过最极简装修了 , 全屋整个空间除了厨房和卫生间安装吊顶其他 , 其他都不做吊顶 , 更找不到客厅电视背景墙 , 也找不到床头背景墙 , 更没有餐厅背景墙 。 全屋整个空间非常极简 , 但是整体出来的效果却很耐看 , 真的太喜欢了 。 值得一提的是 , 也是全屋最大亮点了 , 屋主家的阳台居然放浴缸 , 可以享受泡澡 , 说实在话的 , 我是第一次见这样的布局了 。 在这里想问问大家 , 这样的家 , 这样的布局有谁见过的吗?给大家分享一下 , 一起来看看吧!
快节奏的生活方式 , 越来越多的年轻人在装修的时候 , 都会想把家里装修简单一些 , 而会选择放弃以前过多的造型装饰 , 包括电视墙或者顶面的吊顶 。 其实这样装修 , 更真正做到断离舍 , 知道家里需要什么样的一种效果 , 更机智一些 , 也会真实为自己家的实际需求去装修!
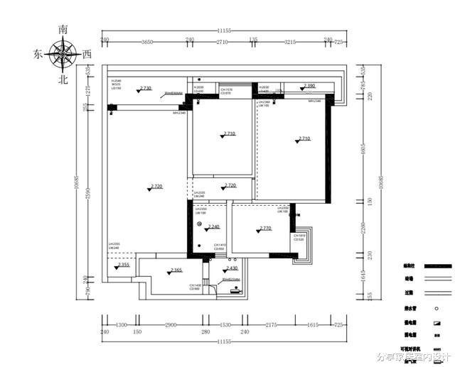
户型图
这是原始结构户型图 , 属于比较常见的一种户型了 , 建筑面积为110平 , 前后装修花了20万 。 整体来说 , 户型方方正正 , 室内采光比较充足 , 不过 , 考虑到生活需求 , 布局还是做了一些变动 , 为了户型更完美 。
特别声明:本站内容均来自网友提供或互联网,仅供参考,请勿用于商业和其他非法用途。如果侵犯了您的权益请与我们联系,我们将在24小时内删除。
