89平两居室,保证空间独立性和通透性,看着就很舒服

文章图片

文章图片

文章图片

文章图片

文章图片

文章图片

文章图片

文章图片

文章图片

文章图片

文章图片

文章图片

文章图片

文章图片
屋主是一名律师 , 因为自身的工作长期处于紧张严肃的状态 , 所以对于家中的环境希望是舒适自在的 , 回到家就能感受到家带来的轻松与轻巧 , 想要打造布局上的开放式状态 , 保证每个空间独立性的同时也要将通透做到极致 , 一家四口在一起生活 , 家中充满着欢声笑语 。
89平两居室 , 保证空间独立性和通透性 , 看着就很舒服
房屋户型:两室
房屋面积:89平方米
装修预算:30万
所在城市:上海
主要建材:线板、木皮、喷漆、大理石、黑铁漆、铁件、玻璃、木地板、壁纸
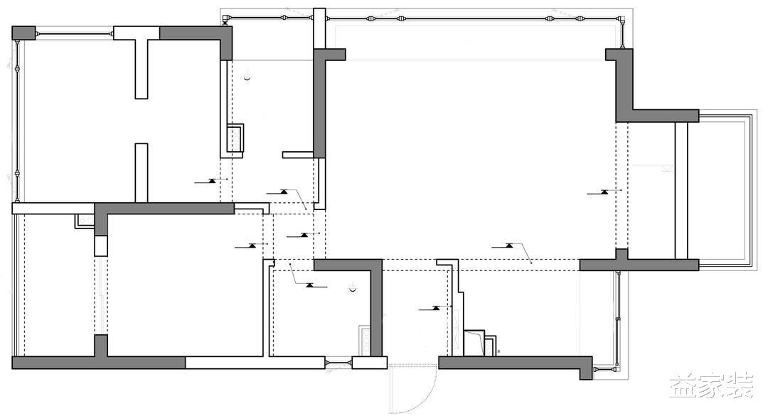
【户型图】
原始户型
原来的户型空间布局不是很合理 , 空间被划分的比较零散琐碎 , 尤其是卧室的区域 , 卫生间的空间也是比较狭窄的 , 家中还缺少收纳的空间 。
改造重点
1.将家中的布局变得合理化 , 以开放式的形式呈现 , 保证空间的独立性 。
2.客厅和餐厅的空间面积相对来说比较大 , 以开阔、清爽的状态展现出来 。
3.将零碎化整 , 空间之间的流畅感增强 。
【客厅】
特别声明:本站内容均来自网友提供或互联网,仅供参考,请勿用于商业和其他非法用途。如果侵犯了您的权益请与我们联系,我们将在24小时内删除。
