电视墙一定要做柜子?她做半通透设计,完工后,反而更实用

文章图片

文章图片

文章图片

文章图片

文章图片

文章图片

文章图片

装修新房时 , 给电视墙做柜子 , 相信很多人都不陌生 , 尤其是在电视机使用率越来越低的当下 , 更是成为了一种主流的做法 。 当然 , 这样设计 , 也的确很实用 , 可以有效提高家里的储物能力 。 不过对于追求空间感的人来说 , 给电视墙做柜子还是有些欠妥的 。
比如下面这套案例中的屋主夫妇 , 由于喜欢简约、通透的空间基调 , 所以就放弃了给电视墙做柜子 , 并且做了半通透处理 。 或许在别人看来 , 这样会有些浪费 , 但从完工后的效果来看 , 却更加实用 , 也十分符合屋主夫妇的生活方式 。
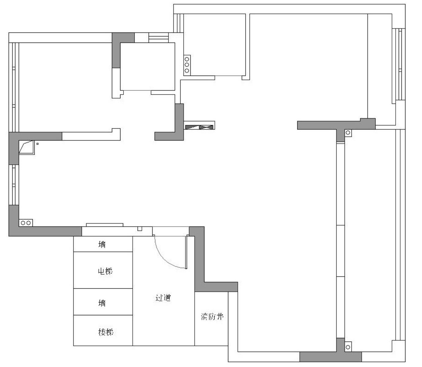
平面结构图
新房位于杭州 , 面积89㎡ , 三室一厅的格局 , 屋主是一对年轻的小夫妻 。 如上面所说 , 屋主比较喜欢简约、通透的空间感 , 并倾向日系慵懒风基调 。 而从原户型来看 , 最大的问题 , 就是空间过于琐碎 , 以及没有一个完整的餐厅区了 。 因此 , 在改造空间时 , 也做了一些相应的结构调整 。
平面方案图
空间布局改造如下
1、厨房做
2、餐厅墙体用柜子延长 , 提高餐厅的完整性 。
3、电视墙采用半通透设计 , 与书房实现贯通 , 提高空间感 。
4、南阳台一分为二 , 一部分纳入客厅 , 一部分改造成家政区 , 减少客厅的空间凌乱感 。
入户
原户型并没有玄关 , 将斗柜摆在入户门旁边 , 既方便了进门后小物品摆放 , 也可以作为餐边柜搭配使用 。 考虑到顶面有圈梁 , 单独刷上
餐厅
由于没有完整的餐厅 , 利用柜子将餐厅墙体延长 , 并采用统一的木饰面处理 , 除了为空间增添了一抹温润的小清新基调之外 , 也让餐厅实现了靠墙摆放 , 从而起到了节省空间的作用 。 而原木餐椅与长凳的结合 , 也在打破平淡的同时 , 带来了一些不对称的美感 。
餐厅看向客厅视角 , 虽说餐厅位置很尴尬 , 但当餐桌临墙摆放后 , 却也有了一个宽敞、舒适的动线空间 。 同时 , 在家里只有两个人居住的情况下 , 临墙姿态的餐桌 , 也完全能满足日常的用餐需求 。
特别声明:本站内容均来自网友提供或互联网,仅供参考,请勿用于商业和其他非法用途。如果侵犯了您的权益请与我们联系,我们将在24小时内删除。
