221方户型大爆改,极致功能设计与优雅东方美学的完美组合!

文章图片

文章图片

文章图片

文章图片

文章图片

文章图片

文章图片

文章图片

文章图片

前情关于本案
鲸落于海 , 星沉于洼 , 风隐于密林 , 蝉鸣漏进夏至 。
人间最美 , 不过自然的密迹 。
世间所有 , 因家而变得温柔 。
About The Design
本案是一家四口居住的四室大平层户型 。 居室色彩素净而优雅 , 并加入了许多现代元素 , 结合户型的大改造与自由的光影渲染 , 使功能的实用性和对传统文化的追求得到双向满足 。 设计通过有序规整的表达 , 清晰的逻辑排布 , 将东方美学特有的内敛雅致隐匿在屋中各个细节之间 。
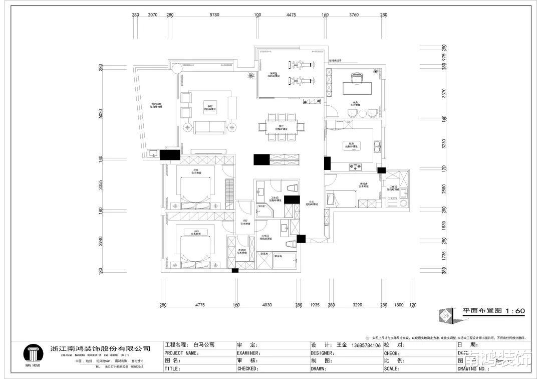
#户型改造
这套房子最大的优点在于客餐厅空间很大且客厅采光非常好;
缺点包括:入户对着西面房间的房门 , 这个房间又影响了餐厅的采光;玄关没有置放鞋柜的地方;客卫离南次卧太远 , 使用起来极不方便;主卧进门正对卫生间 , 衣帽间与卫生间的布局也不合理等 。
我们的改动思路:
首先是把两个卫生间的墙全部拆除并重新布局 , 客卫的位置整体往下移做出一条过道 , 把南次卧跟保姆房之间的动线相连 , 这样就能使客厅与南次卧去客卫的路减少 , 动线更加合理;
然后将西面卧室的墙拆除 , 在进户门直对的地方新砌一堵薄墙来构筑玄关的效果 , 再用玻璃代替原来的砖墙 , 解决餐厅采光不足的问题;
其次把原主卧衣帽间与入户过道之间的墙整体往里退 , 朝进户门过道的方向做一排鞋柜 , 满足玄关鞋柜的需求;
最后是把原主卫的区域切掉一半改成衣帽间 , 把原衣帽间的位置做成主卫 , 这样就能同时解决主卧进门对着卫生间和几个空间布局不合理的问题 。
项目信息:
地址 | 白马公寓
城市 | 中国 杭州
户型 | 四室两厅
面积 | 221㎡
风格 | 新中式
设计施工 | 浙江南鸿装饰
玄关
Hallway
在经过空间的解构重组之后 , 不同功能区的划分变得更加合理与明确 。 相邻墙体的移动为玄关增加了鞋柜的空间 , 过道尽头布置了中式意味的端景 , 整体色彩定调统一 , 呈现宁静和煦的感受 。
- 小客厅如何显大?她家简直是小户型教科书
- 经典欧式三层别墅,八室六卫最受欢迎的户型,你确定不来看看
- 43㎡简约小户型设计,卧室定制榻榻米,还额外打造出小书房!
- 90后小姐姐改造58㎡小户型,全屋智能家居,打造一人一猫小天地
- 小户型攻略:不占地的书房,1㎡就够?
- 户型|优质户型该如何辨别?这些标准需要注意
- 2021年私域大爆发,哪些行业率先吃鸡?
- 小户型想要卧室+书房+影音室?8㎡足够了
- 买房挑选户型的方式
- 煮饭人最知怎么装,他家6㎡的厨房宽敞不凌乱,小户型赶紧学起来
特别声明:本站内容均来自网友提供或互联网,仅供参考,请勿用于商业和其他非法用途。如果侵犯了您的权益请与我们联系,我们将在24小时内删除。
