
文章图片

文章图片

文章图片

文章图片

文章图片

文章图片

文章图片

文章图片

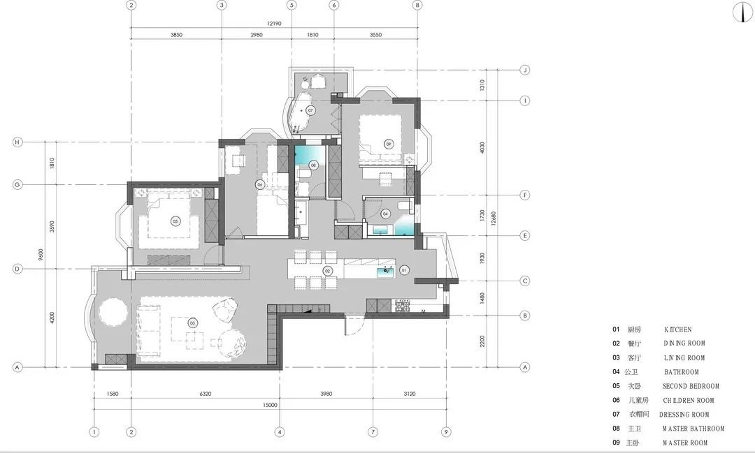
我们从业主需求切入 , 让空间的实用性与艺术感相结合 。 视觉设计上 , 我们以深色为空间基调 , 并在深浅不同的灰色空间里 , 运用微水泥、石材、布料等不同材质 , 让家有高级质感 。 硬装简约内敛 , 软装则更为活泼大方:在深色空间里点缀大地色系、米色系增加暖意 , 月球、星空等宇宙元素的加入 , 让家更具有神秘悠远 。
客厅
客厅布局以屋主喜欢的深色系为主 , 浅色系微水泥墙壁与黑色大理石地砖构造沉稳大气的空间气质 , 将阳台纳入室内 , 阳台收纳柜面与阳台垭口平齐 , 采用同材质木饰面 , 视觉效果完整 , 空间连接亲密 , 过渡自然 。
沙发采用组合款式 , 棕色系与米色搭配 , 哑光皮质更显高档大气 , 搭配背景墙的立体艺术装饰 , 为空间装点艺术气息和氛围感 。
电视背景墙背后是次卧及儿童房 , 原本的梁体结构让走廊空间略显局促 , 我们将儿童房设计成隐形门 , 隐藏在温和的木饰面之下 , 次卧门体也做到通高 , 无门套的设计 , 保证视觉最大的简约感 , 减少看空间小带来的逼仄之感 。
电视背景墙做墙柜 , 契合电视尺寸的设计让视觉效果简约大气 , 底部留空搭配地台 , 更显轻盈 , 层次也更加丰富 , 满足美观设计的同时 , 也打造了充足的收纳空间 。
客厅靠近餐厅一侧墙壁打造收纳柜 , 开放与封闭式兼得的设计丰富收纳空间 , 同时在开放格背景铺贴星空壁纸 , 营造神秘美丽的空间感 , 搭配屋主喜爱的宇航员手办 , 更显别致有趣 。
餐厅
原户型餐厅和厨房布局较小 , 入户正对餐厅 , 视野较为逼仄 , 空间利用率也比较低 。 将隔墙拆除 , 空间打开 , 餐厨合并为一体 , 设中岛台补充收纳及操作台 , 餐厨动线方便 , 空间利用率大大提升 。
改动后 , 开放式布局让入户视野开阔明亮 , 在入户右侧打造收纳柜 , 满足出入户的日常需求 , 另一侧收纳墙柜 , 下方留空的设计更显轻盈 , 也方便保持空间和地面整洁 。
- 尽享都市精彩 |万科·东晟和苑310㎡现代风格
- 154㎡简约法式风格,裸粉色主调丨与众不同的生活氛围
- 内套仅68㎡,全屋堪称“换脸式”装修,干净又清爽全屋都是风景
- 请问下,210斤如何瘦到150斤?
- 三星1500元左右的智能手机好吗,推荐几款-ZOL问答 三星手机排行榜大全
- 65㎡一室一厅,一个人独居
- 如何在一个月内从150斤瘦到80斤 如何在四个月内从170斤瘦到110斤?
- 装修一定要拆墙?她69㎡小家,不做拆改工程,照样干净实用
- 服气!18㎡的老破小,爆改后竟能做干湿分离!
- 120㎡现代极简,低调灰色的空间,文艺时尚的软饰,设计很高级
特别声明:本站内容均来自网友提供或互联网,仅供参考,请勿用于商业和其他非法用途。如果侵犯了您的权益请与我们联系,我们将在24小时内删除。
