112平日式风三居室,屋内时光静好,很有一种让人心动的美感

文章图片

文章图片

文章图片

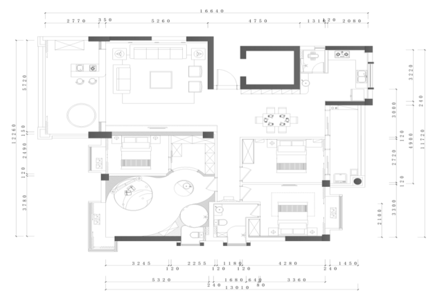
本案是一个日式风格的装修 , 112平米的三居室并未做过多的装饰 , 运用简练的线条打造出一个具有格调的居住环境 。
空间是有磁场的 , 是表达自我、和他人培养情感关系的场所 。
触摸材质会影响人的心理感受 。 选择棉、麻、丝等织物 , 柔和的色彩、细腻的质感使人倍感温暖亲切 。 并细致地做了灯光方案 , 尝试打造多种隐藏灯 , 或把灯集中焦点于一小细节里 , 营造更多的灯光效果;一个好的灯光设计相当于开启了美颜模式 。
有些洁具为感官服务 , 而有些洁具是为身体服务的 , 从关系轴和时间轴看待物品 , 只有对当下的自己需要 , 才会留在空间中 。。
客餐厅是共享的部分 , 有舒适的沙发、整面墙的书柜、半开放的厨房 , 空间所呈现的是一种日常和亲和的状态 , 在这里接待自己的密友 , 闲聊亦或一起烘焙美食 , 都是生活当中非常重要的部分 。
房子里唯一的光源来自餐厅区的吊灯 , 潮流、又具工业感的外形 , 在这个空间里看似格外“不正经” , 但又显得和谐一致 , 揉合了美学和情感 , 它代表的是一种态度 , 骨子里天生地不迎合 。
把客卧改成茶室 , 与主卧连通 , 用一扇推拉门分隔 , 是主人私密的独处空间 , 免受一切外界干扰 。 简简单单的茶台和茶具 , 摒除繁复的装饰 , 将心放空下来 , 与自己独处 , 淡之喧嚣 , 坐拥宁静 。 不仅是一种空间诗意 , 更是一种生活态度 。 窗外天空纯净如水 , 屋内时光静好 , 很有一种让人心动的美感 。 周国平说 , 人生最好的境界是丰富的安静 , 我想 , 这样的境界 , 唯有独处时才能抵达 。
【112平日式风三居室,屋内时光静好,很有一种让人心动的美感】运用了心理学中的一些方法 , 设计了心理投射的小游戏 , 以及各种居住体验和艺术欣赏 , 帮助业主寻找内心的潜意识需求 。 她想要一个自然 , 温暖 , 可以回归自我的房子 。 于是确定了设计的主题:“在空间中遇到自己” 。 而设计师要做的就是把抽象的想象变为具象的设计 。
- 91平的北欧家,客厅拥有家庭图书馆太赞了!
- 平凉市gdp 2020年平凉各区县GDP排行榜
- 稿稿平台怎么下载啊 “发稿集”平台发布流程
- 媒介盒子平台发稿使用事项
- TM媒介:该怎样选择发稿代理平台
- 怎么写好新闻稿件 如何挑选优质的新闻发稿平台呢
- 怎么写新闻稿? 怎么选择新闻发稿公司
- 92平现代二居室,高纯色彩的大量运用,大胆而灵活
- 水电改造时,电线不是越粗越好吗?为何电工说用6平方就是浪费?
- 110平米的现代风新房,装修费花了35万,效果奢华好看,真的值了
特别声明:本站内容均来自网友提供或互联网,仅供参考,请勿用于商业和其他非法用途。如果侵犯了您的权益请与我们联系,我们将在24小时内删除。
