四川凉山三层欧式别墅 土建造价参考68.6万,面宽18m×进深11.4m

文章图片

文章图片

文章图片

文章图片

文章图片

项目概况
项目位置丨四川凉山图纸编号丨000209建筑尺寸丨面宽18m , 进深11.4m建筑面积丨404.00㎡占地面积丨171.00㎡官方指导价 | 土建68.6万建筑高度丨7.9m建筑风格丨欧式结构形式丨砖混结构
△总平面示意图
01.
丨建筑效果图丨
△西侧效果图
△西南侧效果图
△西北侧效果图
△鸟瞰图
△鸟瞰图
△东南侧效果图
02.
丨平面布局图丨
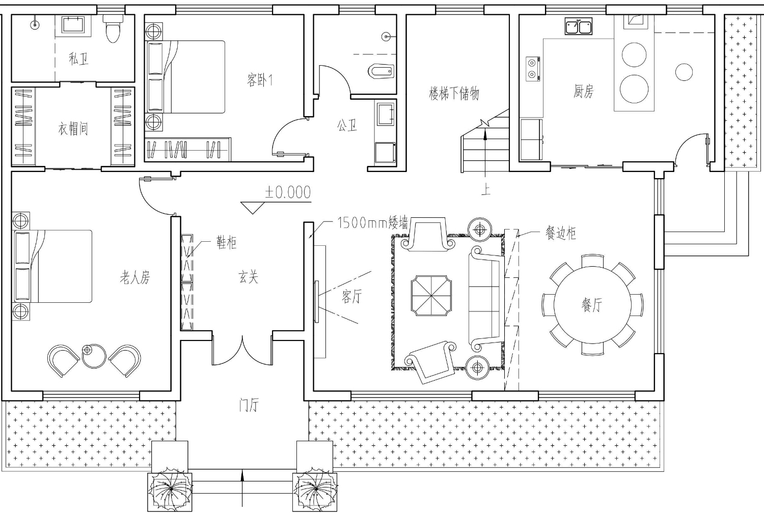
建筑布局:七室、二厅、六卫、一厨房、一土灶、一储物、二衣帽、一茶室、一阳台、一露台
△一层平面图
△二层平面图
△三层平面图
03.
丨项目点评丨
适宜地域南方、北方
适用指数高
适用家庭家中有老人和孩子 , 喜欢欧式风格
别墅户型 7室、2厅、6卫
图纸内容建筑、结构、给排水、电气、暖通
建筑共有三层 , 一层以待客居住为主 , 餐厨空间位于南侧 , 其中餐厅和客厅通过立柜进行半隔断 , 北侧预留了2间卧室 , 其中西北侧的长辈套房 , 搭配衣帽间和独卫使用 , 合理的布局让业主家享受到更优质的生活 。 二层以居住休闲功能为主 , 共布置2间卧室套房;西侧的茶室向外延伸出阳台区域 , 搭配南侧的露台使用 , 满足业主家的休闲、晾晒等需求 。 三层以居住休闲功能为主 , 共布置3间卧室 , 其中北侧的卧室套房增设露台区域 , 满足业主观景需求 。 建筑为欧式风格 , 配色素雅 , 外墙采用深灰色真石漆搭配深色屋顶 , 增强了建筑的质感 。 东立面的门头处使用方柱、角柱等雕花装饰 , 结合硬朗的线条让造型大气中不失优雅 。 坡屋顶的屋面瓦点缀 , 突出其檐口处理;建筑西、南两侧的立面则通过大面积的开窗 , 充分保证了北侧各个房间的采光 。 露台的围栏设计预延续建筑主体造型的简约大气 , 并以美观实用为原则 , 后期可根据业主家的需求 , 摆放休闲桌椅和景观绿植 。
【四川凉山三层欧式别墅 土建造价参考68.6万,面宽18m×进深11.4m】
- 凉山姑娘结婚为什么都包黑丝帕子?
- 第七次人口普查四川省各市人口排名?
- 不想产后肚三层,虎背熊腰,宝宝母乳喂养如何恢复少女身材呢?
- 四川乡镇合并,有你的家乡吗?你是否希望被合并?
- 欧式三层农村别墅,11×13米,复式客厅+旋转楼梯,农村绝佳户型
- 12×9米三层新中式别墅,占地仅104平,卧室多朝南设计
- 感恩公婆!给我盖了三层别墅婚房,前后花费60多万,全村最豪华
- 淘宝三层级和四层级有什么区别?如何提升?
- 经典欧式三层别墅,八室六卫最受欢迎的户型,你确定不来看看?
- 欧式三层小洋楼,回乡建房的不二之选,喜欢就赶紧收藏起来
特别声明:本站内容均来自网友提供或互联网,仅供参考,请勿用于商业和其他非法用途。如果侵犯了您的权益请与我们联系,我们将在24小时内删除。
