
文章插图
我们今天要看的项目是华润
目前在北京市区具有里程碑意义的豪宅项目-昆仑玉;也是南城第一高档住宅 。(名头就是辣么大

文章插图
)
01
项目介绍
华润昆仑域是2015年华润地产联合招商蛇口,平安不动产及九龙仓地产在亚林西拿下的地王项目,位于菜户营桥东南角,西临京开高速,东临规划中的京开东路,折合楼面价格3.7万/平 。整个项目全部由2栋25层高层和2栋16层高层及若干叠拼产品构成,项目首期开盘北侧25层高层产品共200套房源 。

文章插图
位置示意图

文章插图
昆仑域项目效果图

文章插图

文章插图
项目规划图

文章插图
道路规划设计图(规划有所变动,亚林西街升级为京开东路双向8车道)
02
周边配套
01
交通
公交:周围有 玉泉营桥北、 菜户营桥南、菜户营桥东、玉泉营桥、菜户营桥等公交站 。49路、352路、381路、401路、676路、937路、5路、59路、717路、456路等公交车均经过 。
地铁:最近的为10号线草桥站以及4号线马家堡站 。
自驾:项目最方便的路为马家堡东路,但绕道较远 。
02
商业
不远处的西铁营万达广场处于建设中,还未开业 。
03
医院
最近的三甲医院为首都医科大学附属北京佑安医院,然后就是博爱医院 。
03
楼盘分析
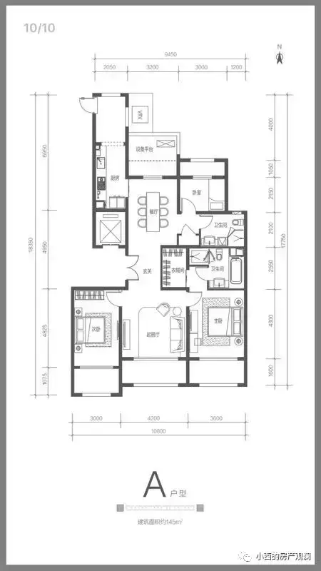
此次开盘的200套房为10#及11#号楼的145和185户型,赠送面积在30平米左右,得房率非常高,层高3.15m 。户型较为中规中矩,185平户型与145平类似,145为3+1户型,而185则为4+1户型 。下面我们分别分析一下2种户型 。
【昆仑山风水 达坂城区昆仑域风水】145户型:

文章插图
初入大门,我们发现一个非常好的一点,电梯和大门不相对,这样做可以防止家庭财气外露;进门口是玄关,此处恰到好处地将餐厅与客厅分离;进入客厅部分,我们可以发现,此户型符合人们比较钟爱的眼镜户型,即主次卧+客厅朝南,主卧符合改善型客户喜爱的套房设计(包括独立卫生间+独立衣帽间) 。主卧面宽达到3.6m的尺度,同时主卧南侧有5.76平赠送面积,客厅的面宽达到4.2m的尺度,在145平这个面积的同类产品中没有突出亮点,客厅的南向也有6平多的赠送面积,次卧面积3m面宽尺度一般 。当然咋一眼看,整个房子的南侧部分也有缺陷,即主次卧门开在客厅处,使得整个客厅并不完整,同时就风水看来,主次卧门相对易造成家庭内部拌嘴 。北侧餐厅部分,我们可以发现客卧部分面积不算很大,赠送面积较南侧部分小很多,客卧侧的卫生间为半明卫这点值得夸赞 。客厅北侧的设备平台为整个的赠送面积,最大的亮点是赠送面积部分为双侧观光玻璃设计,增加了采光尺度,而餐厅另一侧的厨房尽头有大约5平米的赠送面积完全可以当作保姆房 。整个房子户型满足了初级豪宅的尺度和功能性,麻雀虽小五脏俱全 。
185平:
- 从风水上说
- 了不起的修仙模拟器风水建筑 了不起的修仙模拟器风水鉴定
- 复式房子风水好吗 复式房子风水好不好
- 梦幻西游房子风水差距 梦幻西游房屋风水升级
- 正方形房屋风水 正方形房子风水好不好
- 户型缺角风水图解 靠边的房子好不好
- 房子风水怎么看 酒店房间风水
- 晚上失眠与风水 失眠和房子风水有关系吗
- 抑郁症和风水有关吗 得抑郁症是家里哪里风水不好
- 家里室内走廊太长风水处理 走廊太长的风水好吗
特别声明:本站内容均来自网友提供或互联网,仅供参考,请勿用于商业和其他非法用途。如果侵犯了您的权益请与我们联系,我们将在24小时内删除。
