文章插图
衣柜也是卧室内比较占空间的大部头家具,在尺寸上需要慎重选择 。尽量以满足当季衣物的收纳为主,宽度不要太大,进深能达到悬挂衣物的最大肩宽即可 。
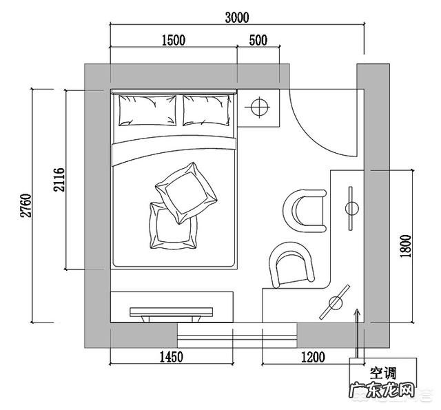
对于家具的布局也要预先做好合理的规划 。如床正常是居中摆放,但9平米的空间里再居中放床可能会造成床两边的空间都很狭窄 。假设房间为方形,宽度3米,去掉600mm的衣柜,再居中放1.5米的床,两边的距离只剩450mm,单人通过都比较困难 。所以床最好靠墙摆放,这样留出的空间会相对宽裕一些 。

文章插图
衣柜也可以考虑与床纵向排列,放在床头或床尾处 。床跟衣柜占用掉一整面墙,可在另一边释放出足够的活动空间 。

文章插图
由于空间狭小,可以考虑使用一些多功能的家具,进而减少家具的数量 。如带收纳功能的床或榻榻米床,放在床头位置的写字台或电脑桌同时可以作为床头柜使用,等等 。

文章插图
另外,在一些家具上方适当布置壁柜和搁板也是不错的方法,在增加收纳的同时还不会占用平面空间 。

文章插图
以上是关于9平米卧室改造的几点个人见解,如有不同想法欢迎留言评论 。
网络图源,侵删 。
阅读三分钟,装修不发愁!Hello,你的专属设计师上线了
首先看保证一个两米的床!剩余空间就是衣柜!衣柜门有两种,一个是平开门!一个是推拉门,九平方的话建议就是推拉门

文章插图

文章插图
色彩上,主要是根据卧室的居住人群,儿童房和老人房,以及我们祖国是它的色彩是不一样的,通过下面的几张图片,大家可以看一看

文章插图
这是老人房的装修整体啊,色彩稳重!大家可以参考一下

文章插图
这个大家一看就是男孩儿的设计!整体偏色彩活跃一些,就可以根据男孩儿女孩儿不同来确定

文章插图

文章插图
这个呢,原木色比较清新,那年轻人都比较喜欢

文章插图
关于卧室呢,其实很好装修啊,确定一个主色调,我们就不用做太多的复杂的造型,主要就色彩上的搭配!
【如何改造9平米的小卧室?】对于适用性或舒适性的卧室来说,尺寸通常为3.6x4.8m,面积约为15-20平米,家具布置有双人床、床头柜、衣柜和电视柜等 。
而对于不足10平米的小卧室来说,家具尺寸可适当减小,布局最好相对集中 。

文章插图
▲常规卧室尺寸及布局

文章插图
▲卧室的布局和家具摆放,除了和功能需求有关外,还和房间的长宽比例、门窗位置有关 。

文章插图
- 面部吸脂 术后效果如何?
- 如何科学坐月子
- 生男宝宝前,如何将酸性体质变成碱性体质?
- 产后如何恢复体型?练瑜伽可以塑形吗?
- 对于身高较矮的人,该如何提高身高?
- 如何评价吴奇隆在电视剧《月嫂先生》中饰演的“男月嫂”沈心唯?
- 端午节如何包粽子?
- 支付宝扫码赚赏金怎么提现?如何使用?
- 支付宝夜间保护还要输密码吗?如何设置?
- 秦皮,玉米须和丝瓜络一起熬煮的功效?如何正确配比?
特别声明:本站内容均来自网友提供或互联网,仅供参考,请勿用于商业和其他非法用途。如果侵犯了您的权益请与我们联系,我们将在24小时内删除。
